5977 Southeast 208th Street, Holt, MO 64048

     
  • 4Beds
  •   
  • 2 Baths
  •  
  • 1½ Bath
  •  
  • 2,508Sq Ft
Mortgage Calculator

$415,000
 est. $1,771/mo

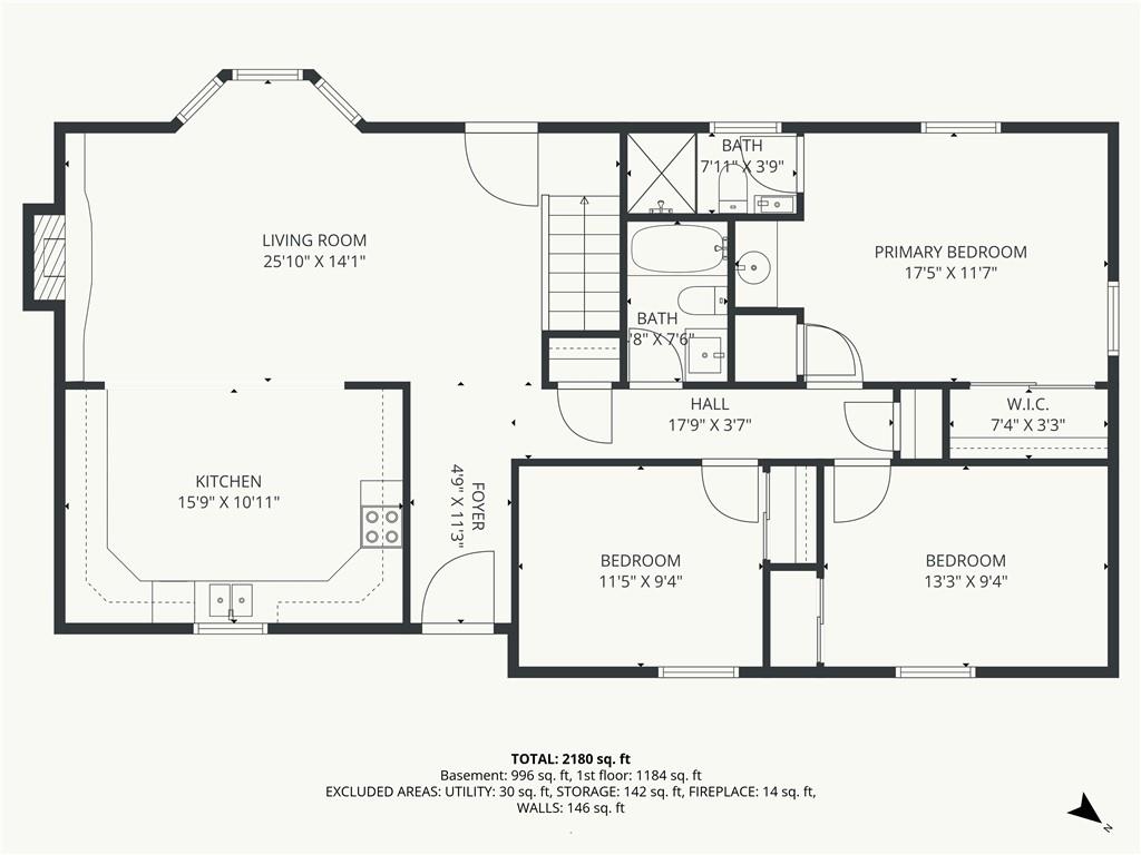
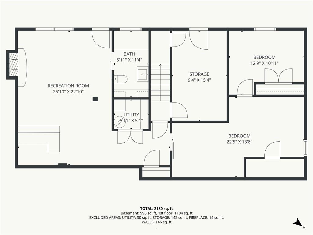
Welcome to this beautifully updated 4-bedroom ranch nestled on nearly 2.5 acres in the highly sought-after Kearney School District! Tucked away on a quiet cul-de-sac, this property offers the perfect blend of privacy, space, and modern updates. Step inside to find an inviting main level featuring a spacious living room that flows seamlessly into the kitchen, complete with granite countertops, an abundance of cabinetry, and excellent functionality for everyday living and entertaining. The primary suite offers a true retreat with dual “his & hers” closets and a newly updated en suite bath. The finished walkout lower level expands your living space with a large family room featuring a fireplace, plus a versatile office/rec room, 4th bedroom, half bath, and convenient laundry area—ideal for guests or multi-purpose use. Outside, enjoy the peace and privacy of your acreage along with a 3-car detached garage, perfect for storage, hobbies, or additional parking. If you’re looking for space, privacy, and move-in-ready comfort in a prime location—this is it!

Directions
I35 to PP Hwy exit, east on PP Hwy to Haynesville, North on Haynesville to 208th St, East on 208th St to house on right
Subdivision
Northwood Estates
City
Holt
County
Clinton
Property Type
Residential / Single Family Residence
Listing Updated
Apr 18, 2026 at 1:04am
MLS Number
2615061
Property Tax
$2,555
Home Owners Association
No
Disclaimer
The information displayed on this page is confidential, proprietary, and copyrighted information of Heartland Multiple Listing Service, Inc. (“Heartland MLS”). Copyright 2026, Heartland Multiple Listing Service, Inc. Heartland MLS, Elite Realty and Agent Jo do not make any warranty or representation concerning the timeliness or accuracy of the information displayed herein. In consideration for the receipt of the information on this page, the recipient agrees to use the information solely for the private non-commercial purpose of identifying a property in which the recipient has a good faith interest in acquiring.
The data relating to real estate displayed on this website comes in part from the Heartland Multiple Listing Service database compilation. The properties displayed on this website may not be all of the properties in the Heartland MLS database compilation, or all of the properties listed with other brokers participating in the Heartland MLS IDX program. Detailed information about the properties displayed on this website includes the name of the listing company.
Information is deemed reliable but is not guaranteed.

Copyright © 2026 ELITE Realty.