401 Smiley Road, Liberty, MO 64068

     
  • 5Beds
  •   
  • 4 Baths
  •  
  • 1½ Bath
  •  
  • 3,931Sq Ft
Mortgage Calculator

$599,999
 est. $2,673/mo

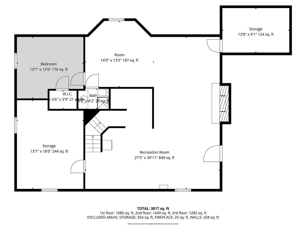
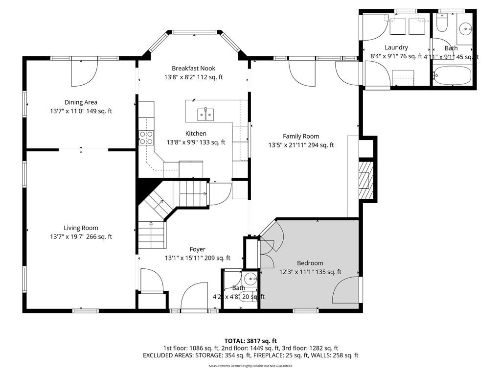
This **classic 2-story brick home** on **2 beautiful acres** offering space, privacy and the kind of setting buyers dream about. The circle driveway creates an impressive arrival, while the attached 2-car garage plus an additional 2-car detached garage provide exceptional space for vehicles, hobbies, or storage. Inside, you’ll find a traditional yet highly functional layout designed for both everyday living and entertaining. The main level features a formal Living room and formal Dining room, along with an eat-in Kitchen with custom cabinetry and stainless steel appliances. The Family room with a brick fireplace offers a warm, inviting space to gather. A main-level Bedroom is a standout feature with its own private entrance, making it ideal for a home office, guest space, multi-generational living or even a private business space. A full bath and half bath on the main level add convenience and flexibility. Upstairs, the spacious Primary suite serves as a true retreat, complete with its own brick fireplace, en-suite Bathroom and private deck** overlooking the treed property. Three additional generously sized Bedrooms and a large full Bath with double vanity complete the upper level. The finished lower level expands your living space even further with a large open Rec room featuring another brick fireplace, a non-conforming Bedroom and a full Bath**—perfect for guests, hobbies or extended stays. Step outside to a concrete Patio spanning the entire width of the home, ideal for entertaining, relaxing or simply enjoying the peaceful surroundings. The mature trees and expansive lot create a private, serene setting that’s hard to find this close to city conveniences. Homes with this much land in Liberty are a rare find. If you’ve been searching for space, privacy and a home with character in a prime location—this is a must-see.**

Directions
From Kansas City take I-35, Take exit 13 toward US-69 S/Pleasant Valley/Liberty/Glenaire/Pleasant Valley Rd/S Liberty Pkwy onto US-69 N. Turn right onto S Liberty Pkwy. Turn left onto Flintlock Rd. Continue on Liberty Dr. Take the 1st exit from roundabout. Continue on Liberty Dr. Turn right onto Adkins Rd. Turn left onto Smiley Rd to home on right.
Subdivision
Urban Heights
City
Liberty
County
Clay
Property Type
Residential / Single Family Residence
Listing Updated
Apr 23, 2026 at 1:04am
MLS Number
2615049
Property Tax
$5,039
Home Owners Association
No
Disclaimer
The information displayed on this page is confidential, proprietary, and copyrighted information of Heartland Multiple Listing Service, Inc. (“Heartland MLS”). Copyright 2026, Heartland Multiple Listing Service, Inc. Heartland MLS, Elite Realty and Agent Jo do not make any warranty or representation concerning the timeliness or accuracy of the information displayed herein. In consideration for the receipt of the information on this page, the recipient agrees to use the information solely for the private non-commercial purpose of identifying a property in which the recipient has a good faith interest in acquiring.
The data relating to real estate displayed on this website comes in part from the Heartland Multiple Listing Service database compilation. The properties displayed on this website may not be all of the properties in the Heartland MLS database compilation, or all of the properties listed with other brokers participating in the Heartland MLS IDX program. Detailed information about the properties displayed on this website includes the name of the listing company.
Information is deemed reliable but is not guaranteed.

Copyright © 2026 ELITE Realty.