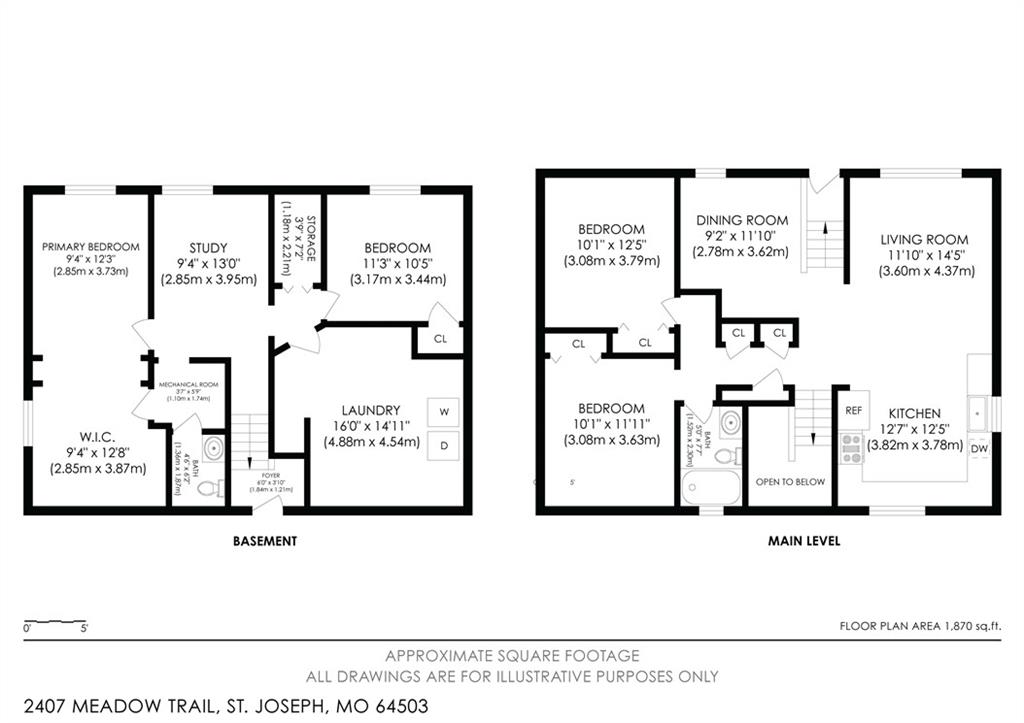
2407 Meadow Trail, St Joseph, MO 64503

     
  • 4Beds
  •   
  • 1 Bath
  •  
  • 1½ Bath
  •  
  • 1,800Sq Ft
Mortgage Calculator

$240,000
 est. $1,006/mo

BACK ON MARKET AT NO FAULT OF THE SELLER! Welcome to 2407 Meadow Trail, a spacious split-level gem in the established Deer Park neighborhood. This 4-bed, 1.5-bath home offers a versatile layout with multiple living areas, ideal for everyday living and entertaining. The main level boasts fresh interior paint, new carpet and updated flooring throughout, creating a fresh and welcoming atmosphere. The kitchen is equipped with a new dishwasher, ready to make meal cleanup a breeze. Out back, a fully fenced yard with an above-ground pool and deck is perfect for summer evenings and weekend gatherings. Built in 1962, the home retains its classic charm while offering plenty of opportunity to add your personal touch. Additional highlights include off-street parking, ample storage, and close proximity to Skaith Elementary, Truman Middle, and Central High.

Directions
From Center of St Joseph: Start heading south on 4th Street toward Frederick Avenue. Turn left onto Frederick Avenue. Continue on Frederick Avenue for about 1.5 miles. Turn right onto South 22nd Street (also known as Route 371). Continue south on S 22nd Street ˜ 2.5 miles. Turn left onto Hyde Park Avenue. After about 0.3 miles, turn right onto Meadow Trail. Follow Meadow Trail and you will arrive at 2407 Meadow Trail, on the left.
Subdivision
Deer Park
City
St Joseph
County
Buchanan
Property Type
Residential / Single Family Residence
Listing Updated
Apr 22, 2026 at 7:04pm
MLS Number
2613209
Property Tax
$1,250
Home Owners Association
No
Disclaimer
The information displayed on this page is confidential, proprietary, and copyrighted information of Heartland Multiple Listing Service, Inc. (“Heartland MLS”). Copyright 2026, Heartland Multiple Listing Service, Inc. Heartland MLS, Elite Realty and Agent Jo do not make any warranty or representation concerning the timeliness or accuracy of the information displayed herein. In consideration for the receipt of the information on this page, the recipient agrees to use the information solely for the private non-commercial purpose of identifying a property in which the recipient has a good faith interest in acquiring.
The data relating to real estate displayed on this website comes in part from the Heartland Multiple Listing Service database compilation. The properties displayed on this website may not be all of the properties in the Heartland MLS database compilation, or all of the properties listed with other brokers participating in the Heartland MLS IDX program. Detailed information about the properties displayed on this website includes the name of the listing company.
Information is deemed reliable but is not guaranteed.

Copyright © 2026 ELITE Realty.