14 Southwest 260 Road, Warrensburg, MO 64093

     
  • 4Beds
  •   
  • 3 Baths
  •  
  • 0½ Baths
  •  
  • 3,450Sq Ft
Mortgage Calculator

$499,000
 est. $2,105/mo

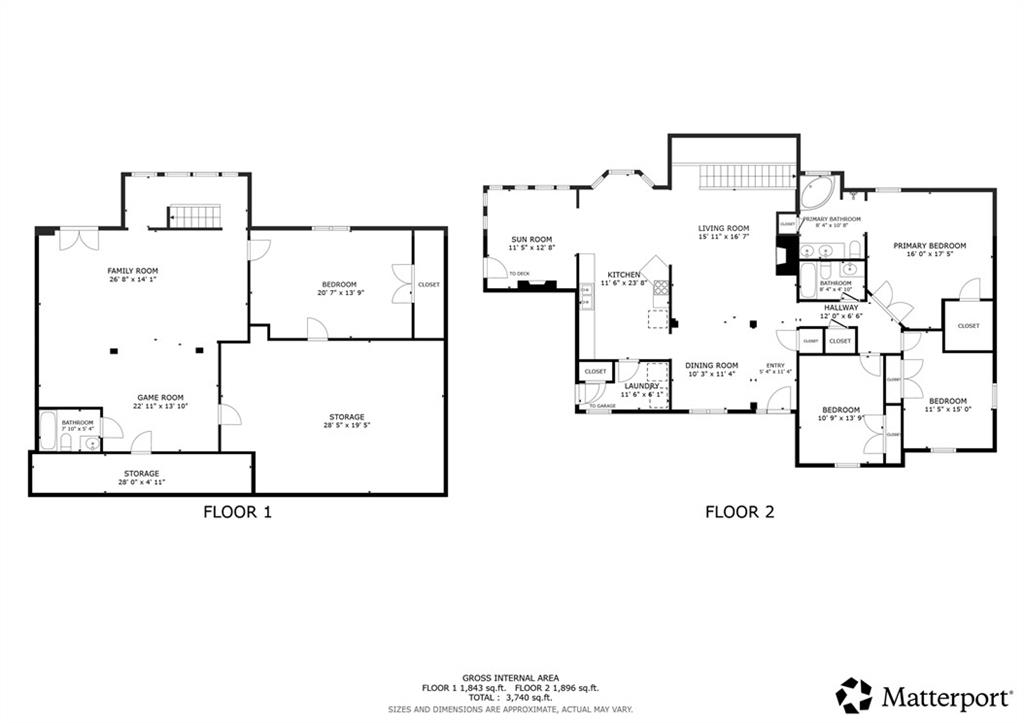
Sitting on three picturesque acres in the Woodland Trails Subdivision, this one-owner home offers four bedrooms, three bathrooms, and a spacious three-car garage. Impeccably maintained, it boasts a fully finished walk-out basement. The property is dotted with cherry, apple, and pin oak trees, adding to its charm. Inside, the inviting living room features a gas fireplace and a vaulted ceiling, while the kitchen includes a breakfast nook, formal dining room, and a sunroom. Step out from the sunroom onto the deck to savor your morning coffee. A convenient laundry/pantry sits near the kitchen. The finished basement provides generous storage space and a storm shelter beneath the front porch. Recent updates include a new HVAC system installed in 2023 by Fox Heating and Cooling, along with fresh interior paint the same year.

Directions
BB Hwy to SW 21 Road, follow to Woodland Trails
Subdivision
Woodland Trails
City
Warrensburg
County
Johnson, MO
Property Type
Residential / Single Family Residence
Listing Updated
Apr 25, 2026 at 12:04pm
MLS Number
2610420
Property Tax
$2,781
Home Owners Association
No
Disclaimer
The information displayed on this page is confidential, proprietary, and copyrighted information of Heartland Multiple Listing Service, Inc. (“Heartland MLS”). Copyright 2026, Heartland Multiple Listing Service, Inc. Heartland MLS, Elite Realty and Agent Jo do not make any warranty or representation concerning the timeliness or accuracy of the information displayed herein. In consideration for the receipt of the information on this page, the recipient agrees to use the information solely for the private non-commercial purpose of identifying a property in which the recipient has a good faith interest in acquiring.
The data relating to real estate displayed on this website comes in part from the Heartland Multiple Listing Service database compilation. The properties displayed on this website may not be all of the properties in the Heartland MLS database compilation, or all of the properties listed with other brokers participating in the Heartland MLS IDX program. Detailed information about the properties displayed on this website includes the name of the listing company.
Information is deemed reliable but is not guaranteed.

Copyright © 2026 ELITE Realty.