2291 W Elm Terrace, Olathe, KS 66061

     
  • 5Beds
  •   
  • 4 Baths
  •  
  • 0½ Baths
  •  
  • 2,850Sq Ft
Mortgage Calculator

$664,950
 est. $3,055/mo

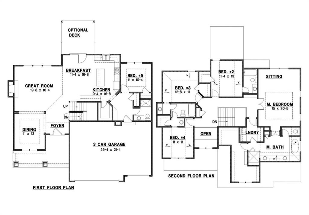
The Levi II offers an exceptional blend of space, style, and functionality with expanded square footage and upgraded finishes throughout. The enlarged kitchen and breakfast area feature custom cabinetry, granite countertops, a large center island with seating, tile backsplash, upgraded faucet, walk-in pantry, and stainless steel appliances—perfect for everyday living and entertaining. Hardwood floors extend through the entry, kitchen, breakfast area, and mud room. A versatile main-level flex room with closet and wood-paneled ceiling provides ideal space for a home office or fifth bedroom. The mud room includes a boot bench and entry closet, while the great room is anchored by a stone direct-vent fireplace with wood mantle. The primary suite is a true retreat, offering a separate sitting area, vaulted ceiling, expanded walk-in closet, and spa-like bath with granite countertops, soaking tub, and walk-in tile shower. All bedrooms feature vaulted ceilings. Upstairs highlights include a loft area with built-in bookshelves, a hallway window for added natural light, and a spacious laundry room with custom cabinetry and granite countertop. Tile flooring is featured in all bathrooms and the laundry room, with Berber carpet on the stairs. Enjoy outdoor living on the covered patio with a full sprinkler system. Located in Prairie Farms, residents enjoy neighborhood amenities including walking trails, pool, playground, and convenient walking distance to Lake Olathe.

Directions
West on Santa Fe (135th St.) to S Hedge Left (south) on Persimmon, right on Elm, follow along and home is on your left.
Subdivision
Prairie Farms
City
Olathe
County
Johnson, KS
Property Type
Residential / Single Family Residence
Listing Updated
Apr 19, 2026 at 4:04pm
MLS Number
2609771
Property Tax
$6,700
Home Owners Association
Yes - Young Management Group
Disclaimer
The information displayed on this page is confidential, proprietary, and copyrighted information of Heartland Multiple Listing Service, Inc. (“Heartland MLS”). Copyright 2026, Heartland Multiple Listing Service, Inc. Heartland MLS, Elite Realty and Agent Jo do not make any warranty or representation concerning the timeliness or accuracy of the information displayed herein. In consideration for the receipt of the information on this page, the recipient agrees to use the information solely for the private non-commercial purpose of identifying a property in which the recipient has a good faith interest in acquiring.
The data relating to real estate displayed on this website comes in part from the Heartland Multiple Listing Service database compilation. The properties displayed on this website may not be all of the properties in the Heartland MLS database compilation, or all of the properties listed with other brokers participating in the Heartland MLS IDX program. Detailed information about the properties displayed on this website includes the name of the listing company.
Information is deemed reliable but is not guaranteed.

Copyright © 2026 ELITE Realty.