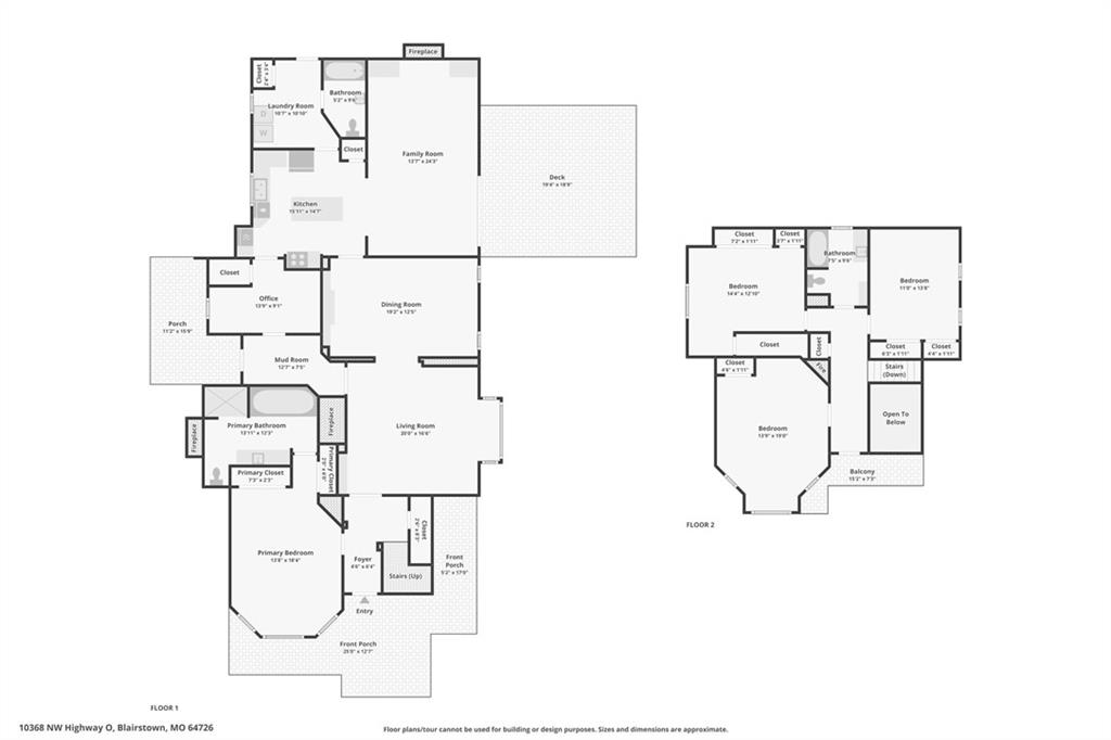
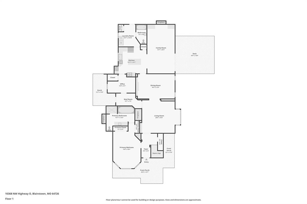
10368 Northwest O Highway, Blairstown, MO 64726

     
  • 4Beds
  •   
  • 3 Baths
  •  
  • 0½ Baths
  •  
  • 3,473Sq Ft
Mortgage Calculator

$438,000
 est. $1,758/mo

Step into timeless elegance and modern comfort with this beautifully maintained Victorian-style farmhouse, perfectly blending historic character with thoughtful and important updates. Built in 1895 and situated on a generous 5.9-acre lot, this 4-bedroom, 3-bath home offers approximately 3,473 square feet of living space—ideal for families seeking a peaceful country retreat with room to grow, relax, or even start a hobby farm. Inside, the home welcomes you with spacious living areas, beamed ceilings, and original architectural details that showcase the exceptional craftsmanship of its era. The kitchen boasts ample workspace. Adjacent large dining and family rooms create the perfect gathering spaces for holidays, game nights, or casual get-togethers. Upstairs and throughout, you'll find generously sized bedrooms that offer comfort and privacy for everyone in the family. Recent updates—including a new roof, new siding, and new flooring—ensure worry-free living while preserving the home's authentic charm. Additional features include a 3-car garage for vehicles, equipment, or projects. Machine shed and a chicken coop allow for the new owner to start a hobby farm with all the necessary storage. Step outside to enjoy the best of rural Missouri living. Mature trees frame stunning countryside views, while the expansive lawn and wide-open spaces are perfect for gardening or raising animals. Relax on the inviting front porch with your morning coffee or watch the sunset from the backyard—pure country serenity. Whether you're dreaming of a historic family home full of heart, a hobby farm setup, or a tranquil escape from the city, this one-of-a-kind property delivers endless possibilities. Don't miss your chance to own a piece of Missouri history with all the comforts of today! Quick! Take a look and make this farmhouse your own! Seller indicates possible additional acerage available. Seller does not warrant fireplaces. Buyers encouraged to verify all measurements and claims.

Directions
13 Hwy west to O Hwy to Norris. South on O to property.
Subdivision
None
City
Blairstown
County
Henry
Property Type
Residential / Single Family Residence
Listing Updated
Apr 20, 2026 at 7:04pm
MLS Number
2609521
Property Tax
$1,363
Home Owners Association
No
Disclaimer
The information displayed on this page is confidential, proprietary, and copyrighted information of Heartland Multiple Listing Service, Inc. (“Heartland MLS”). Copyright 2026, Heartland Multiple Listing Service, Inc. Heartland MLS, Elite Realty and Agent Jo do not make any warranty or representation concerning the timeliness or accuracy of the information displayed herein. In consideration for the receipt of the information on this page, the recipient agrees to use the information solely for the private non-commercial purpose of identifying a property in which the recipient has a good faith interest in acquiring.
The data relating to real estate displayed on this website comes in part from the Heartland Multiple Listing Service database compilation. The properties displayed on this website may not be all of the properties in the Heartland MLS database compilation, or all of the properties listed with other brokers participating in the Heartland MLS IDX program. Detailed information about the properties displayed on this website includes the name of the listing company.
Information is deemed reliable but is not guaranteed.

Copyright © 2026 ELITE Realty.