7809 Northwest Scenic Drive, Weatherby Lake, MO 64152

     
  • 4Beds
  •   
  • 3 Baths
  •  
  • 0½ Baths
  •  
  • 2,780Sq Ft
Mortgage Calculator

$614,900
 est. $2,725/mo

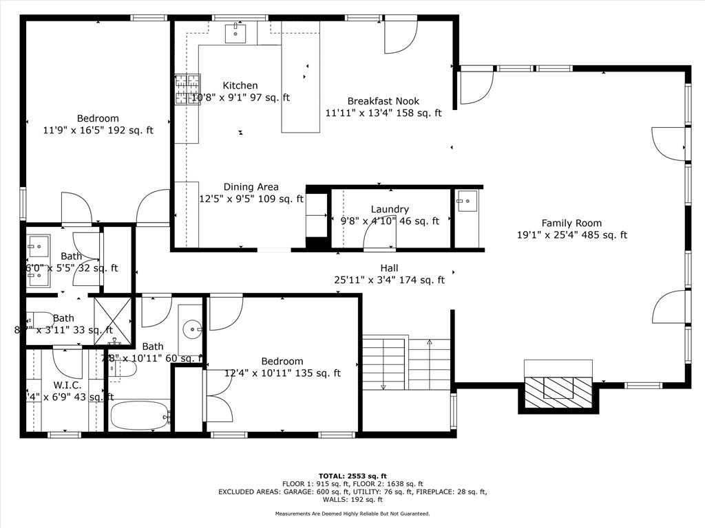
Amazing updated Raised Ranch in Weatherby Lake! This home sits on 1/2-acre lot and features a new kitchen, updated baths, new flooring, exterior upgrades, and more. Enjoy stunning lake views from the expansive new deck and take advantage of its location within walking distance to the community’s amenities point access area, complete with a swim beach, picnic tables, pavilion, and more. The main level boasts vaulted ceilings and large picture windows, flooding the space with natural light. It includes a formal dining room, a primary suite, an additional bedroom and bathroom, plus a convenient laundry room. The lower level offers a cozy family room and two more bedrooms with a Jack-and-Jill bathroom. The oversized garage is a bonus. Embrace the Lake Lifestyle, with immediate access to swimming, fishing, community clubs, playgrounds, and so much more. Experience the magic of Lake Life and make this home yours TODAY!

Directions
From I-29, go west. Go south on Eastside Drive. Take a right on 78th Street. Home will be on the right. This is the back entrance to the property
Subdivision
Lakeview
City
Weatherby Lake
County
Platte
Property Type
Residential / Single Family Residence
Listing Updated
Mar 20, 2026 at 4:03am
MLS Number
2608243
Property Tax
$4,999
Home Owners Association
Yes - Weatherby Lake Improvement Company
Disclaimer
The information displayed on this page is confidential, proprietary, and copyrighted information of Heartland Multiple Listing Service, Inc. (“Heartland MLS”). Copyright 2026, Heartland Multiple Listing Service, Inc. Heartland MLS, Elite Realty and Agent Jo do not make any warranty or representation concerning the timeliness or accuracy of the information displayed herein. In consideration for the receipt of the information on this page, the recipient agrees to use the information solely for the private non-commercial purpose of identifying a property in which the recipient has a good faith interest in acquiring.
The data relating to real estate displayed on this website comes in part from the Heartland Multiple Listing Service database compilation. The properties displayed on this website may not be all of the properties in the Heartland MLS database compilation, or all of the properties listed with other brokers participating in the Heartland MLS IDX program. Detailed information about the properties displayed on this website includes the name of the listing company.
Information is deemed reliable but is not guaranteed.

Copyright © 2026 ELITE Realty.