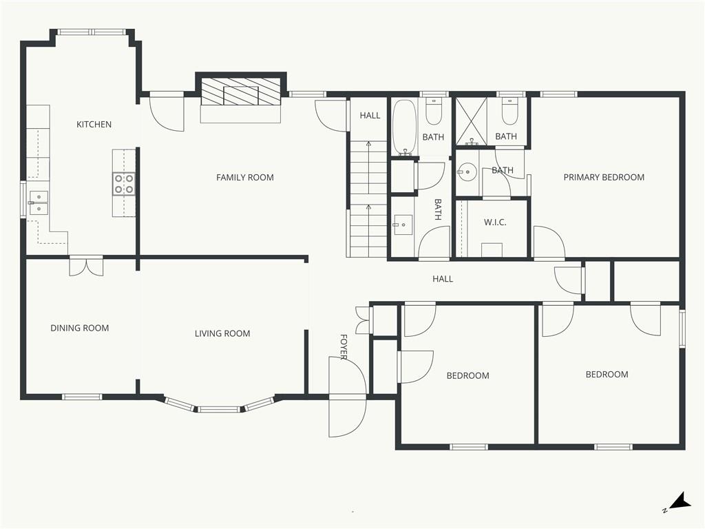
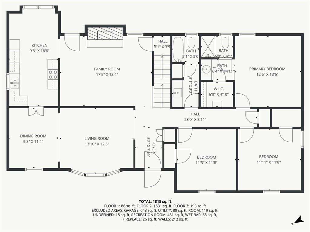
523 Lancelot Drive, Liberty, MO 64068

     
  • 4Beds
  •   
  • 3 Baths
  •  
  • 0½ Baths
  •  
  • 2,544Sq Ft
Mortgage Calculator

$325,000
 est. $1,502/mo

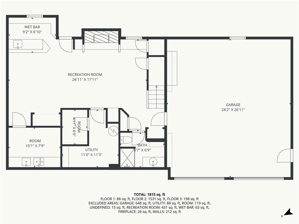
EXCEPTIONAL OPPORTUNITY for the right buyer/investor wanting to create their own Palate * Seller would prefer to sell in in as-is condition* Large Home * NEW DECK / High Efficiency Furnace / Vaulted Ceilings in Living room with Wood Beams / NEWER Carpet in FORMAL Dining and Living Rooms / Great Floor PLan / EXCELLENT NEIGHBORHOOD / This home sits between two other homes for sale valued at $412k and $465k * Home features a finished walk out basement with wet bar and non conforming 5th bedroom / 3rd FULL BATHROOM downstairs along with 2nd MASONRY FIREPLACE / Main Floor Primary Bedroom / 2 additional bedrooms on main floor * Private back yard and TREES EVERYWHERE / You will have an amazing equity position PLUS an enclave community of cul-de-sacs *

Directions
291Hwy to Kansas and go East to Clayview Drive and turn Left. Stay on Clayview towards top of hill and turn Left on Camelot Dr then go to Lancelot Dr and turn Left and follow to address on left (Next door to the white house)
Subdivision
Camelot
City
Liberty
County
Clay
Property Type
Residential / Single Family Residence
Listing Updated
Mar 20, 2026 at 1:03am
MLS Number
2607422
Property Tax
$3,383
Home Owners Association
No
Disclaimer
The information displayed on this page is confidential, proprietary, and copyrighted information of Heartland Multiple Listing Service, Inc. (“Heartland MLS”). Copyright 2026, Heartland Multiple Listing Service, Inc. Heartland MLS, Elite Realty and Agent Jo do not make any warranty or representation concerning the timeliness or accuracy of the information displayed herein. In consideration for the receipt of the information on this page, the recipient agrees to use the information solely for the private non-commercial purpose of identifying a property in which the recipient has a good faith interest in acquiring.
The data relating to real estate displayed on this website comes in part from the Heartland Multiple Listing Service database compilation. The properties displayed on this website may not be all of the properties in the Heartland MLS database compilation, or all of the properties listed with other brokers participating in the Heartland MLS IDX program. Detailed information about the properties displayed on this website includes the name of the listing company.
Information is deemed reliable but is not guaranteed.

Copyright © 2026 ELITE Realty.