8208 Chas Circle, Pleasant Valley, MO 64068

Mortgage Calculator

$1,125,000
 est. $4,811/mo

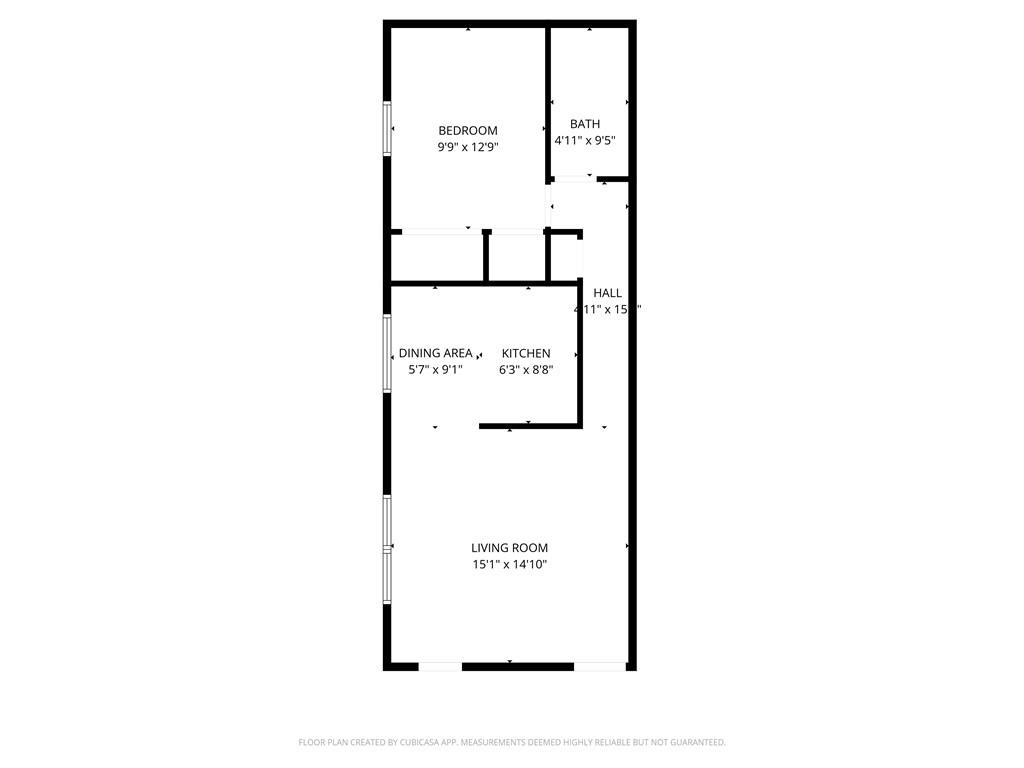
Increase your portfolio with this unique 10 plex building all under one roof. History of excellent occupancy with market rents is now available. Property includes newer roof (2018), easy to maintain exterior (vinyl siding), off street parking on both sides of the building, quiet setting in cut-de-sac and backs to trees. Low maintenance property without expensive to maintain decks or exterior features. Landlord has spent capital improvement funds on updating the flooring and interior features. Complete list of actual expenses, lease terms etc are available. One unit is being held vacant for initial showings, remainder of units may be toured with accepted LOI.

Directions
From Church Rd north of I-35 & Pleasant Valley Rd, West on Kaill Rd to to Chas Drive, North to Chas Circle and then to property at end of Culdesac.
Subdivision
Other
City
Pleasant Valley
County
Clay
Property Type
Residential Income / Apartment
Listing Updated
Mar 10, 2026 at 3:03pm
MLS Number
2605472
Property Tax
$7,045
Zoning
$COMM
Home Owners Association
No
Disclaimer
The information displayed on this page is confidential, proprietary, and copyrighted information of Heartland Multiple Listing Service, Inc. (“Heartland MLS”). Copyright 2026, Heartland Multiple Listing Service, Inc. Heartland MLS, Elite Realty and Agent Jo do not make any warranty or representation concerning the timeliness or accuracy of the information displayed herein. In consideration for the receipt of the information on this page, the recipient agrees to use the information solely for the private non-commercial purpose of identifying a property in which the recipient has a good faith interest in acquiring.
The data relating to real estate displayed on this website comes in part from the Heartland Multiple Listing Service database compilation. The properties displayed on this website may not be all of the properties in the Heartland MLS database compilation, or all of the properties listed with other brokers participating in the Heartland MLS IDX program. Detailed information about the properties displayed on this website includes the name of the listing company.
Information is deemed reliable but is not guaranteed.

Copyright © 2026 ELITE Realty.