7201 Northwest 73rd Street, Kansas City, MO 64152

     
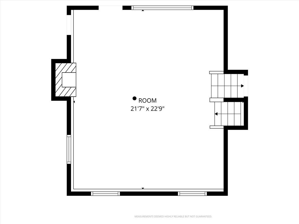
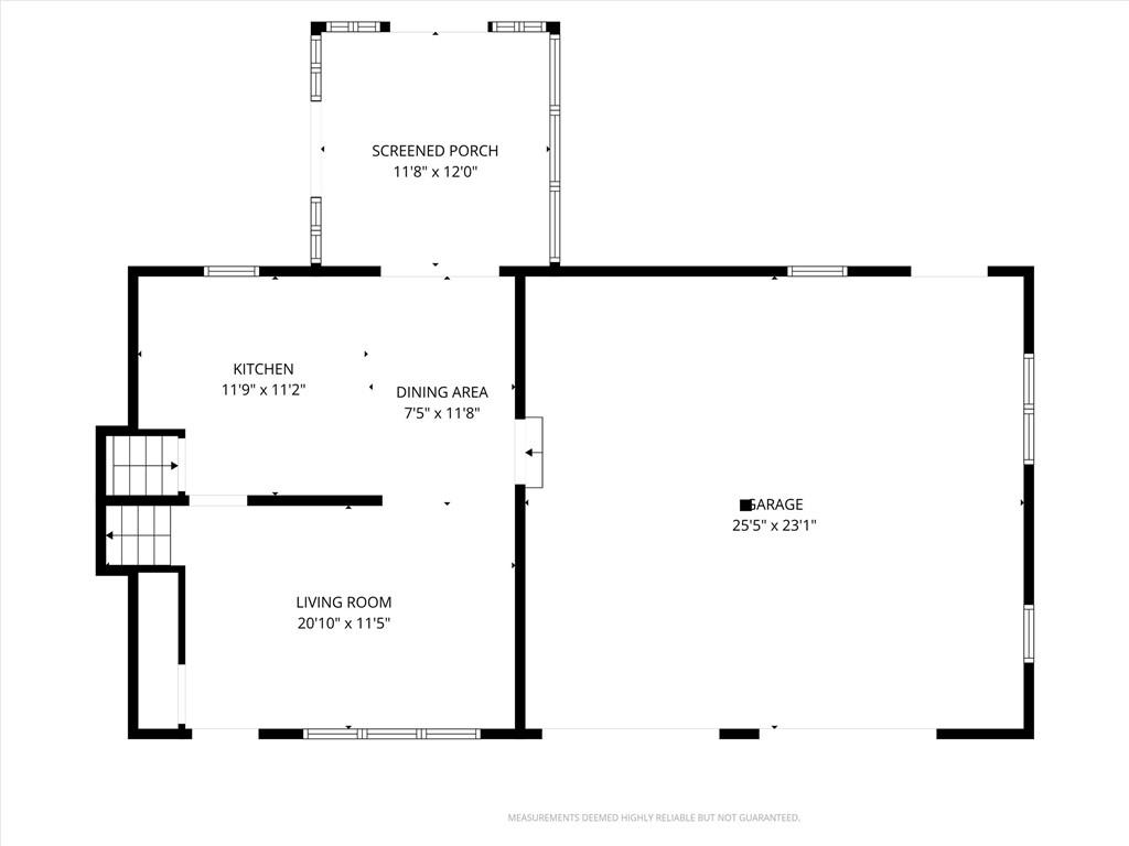
  • 3Beds
  •   
  • 2 Baths
  •  
  • 0½ Baths
  •  
  • 1,513Sq Ft
Mortgage Calculator

$279,900
 est. $1,332/mo

Welcome to this beautifully maintained side to side split property that blends comfort and space. Home has great curb appeal with a wide driveway attached 2 car garage with additional carport. Open feel as you walk into the home with plenty of light. Newer interior paint and LVP flooring throughout. Enjoy your favorite beverage off the master bedroom covered deck overlooking the private backyard. Corner lot with mature trees and highly rated Park Hill School District. Location is convenient with access to shopping, dining and major highways.

Directions
9 HWY to 73rd St property on the LEFT.
Subdivision
Park Forest
City
Kansas City
County
Platte
Property Type
Residential / Single Family Residence
Listing Updated
Mar 20, 2026 at 8:03pm
MLS Number
2605296
Property Tax
$3,365
Home Owners Association
No
Disclaimer
The information displayed on this page is confidential, proprietary, and copyrighted information of Heartland Multiple Listing Service, Inc. (“Heartland MLS”). Copyright 2026, Heartland Multiple Listing Service, Inc. Heartland MLS, Elite Realty and Agent Jo do not make any warranty or representation concerning the timeliness or accuracy of the information displayed herein. In consideration for the receipt of the information on this page, the recipient agrees to use the information solely for the private non-commercial purpose of identifying a property in which the recipient has a good faith interest in acquiring.
The data relating to real estate displayed on this website comes in part from the Heartland Multiple Listing Service database compilation. The properties displayed on this website may not be all of the properties in the Heartland MLS database compilation, or all of the properties listed with other brokers participating in the Heartland MLS IDX program. Detailed information about the properties displayed on this website includes the name of the listing company.
Information is deemed reliable but is not guaranteed.

Copyright © 2026 ELITE Realty.