717 Fallen Leaf Drive, Belton, MO 64012

     
  • 4Beds
  •   
  • 3 Baths
  •  
  • 0½ Baths
  •  
  • 2,042Sq Ft
Mortgage Calculator

$423,990
 est. $1,945/mo

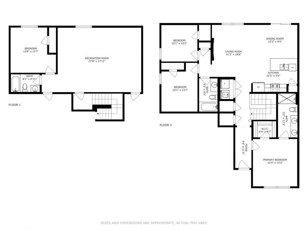
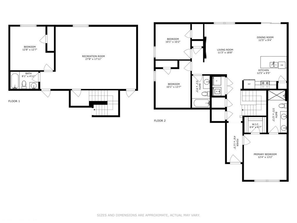
The Aldridge is a ranch style home with finished basement. On the main level, you’ll find 3 bedrooms, 2 baths, and an open-concept layout that keeps everything connected. The kitchen features quartz countertops, a functional island, and a pantry, flowing seamlessly into the dining and living areas. The space feels bright and inviting, ideal for everyday living. The primary suite offers room for a king-sized bed, along with a private bath and walk-in closet. Two additional bedrooms provide flexibility for family, guests, or a home office all conveniently located on one level. Downstairs is where this home truly expands. The finished basement adds approximately 770 additional square feet, including a fourth-bedroom and full bathroom perfect for guests additional family, or kids. The extra living area creates space for a second family room, media area, workout space, or game nights. With Smart Home technology, energy-efficient features, and the peace of a new-home warranty, this Aldridge offers the convenience of single-level living with the bonus space buyers love.

Directions
From KCMO - Take the ramp on the left and follow signs for I-70 East / US-40 East-At Exit 8A, head right on the ramp for I-435 South toward Wichita-At Exit 71, head right on the ramp for I-49 South / US-71 South / I-470 East / US-50 East Lee's Summit-At Exit 172, head on the ramp right and follow signs for Belton and Peculiar Dr-0.9 mi. Exit right on to MO58 and turn right. Turn left on to S Mullen Rd and turn right on to Sycamore Drive. Turn left on to Fallen Leaf Dr. The home is on your left.
Subdivision
Autumn Ridge
City
Belton
County
Cass
Property Type
Residential / Single Family Residence
Listing Updated
Apr 16, 2026 at 12:04pm
MLS Number
2605221
Property Tax
$0
Home Owners Association
No
Disclaimer
The information displayed on this page is confidential, proprietary, and copyrighted information of Heartland Multiple Listing Service, Inc. (“Heartland MLS”). Copyright 2026, Heartland Multiple Listing Service, Inc. Heartland MLS, Elite Realty and Agent Jo do not make any warranty or representation concerning the timeliness or accuracy of the information displayed herein. In consideration for the receipt of the information on this page, the recipient agrees to use the information solely for the private non-commercial purpose of identifying a property in which the recipient has a good faith interest in acquiring.
The data relating to real estate displayed on this website comes in part from the Heartland Multiple Listing Service database compilation. The properties displayed on this website may not be all of the properties in the Heartland MLS database compilation, or all of the properties listed with other brokers participating in the Heartland MLS IDX program. Detailed information about the properties displayed on this website includes the name of the listing company.
Information is deemed reliable but is not guaranteed.

Copyright © 2026 ELITE Realty.