8003 Mullen Road, Lenexa, KS 66215

     
  • 4Beds
  •   
  • 2 Baths
  •  
  • 1½ Bath
  •  
  • 2,588Sq Ft
Mortgage Calculator

$450,000
 est. $2,125/mo

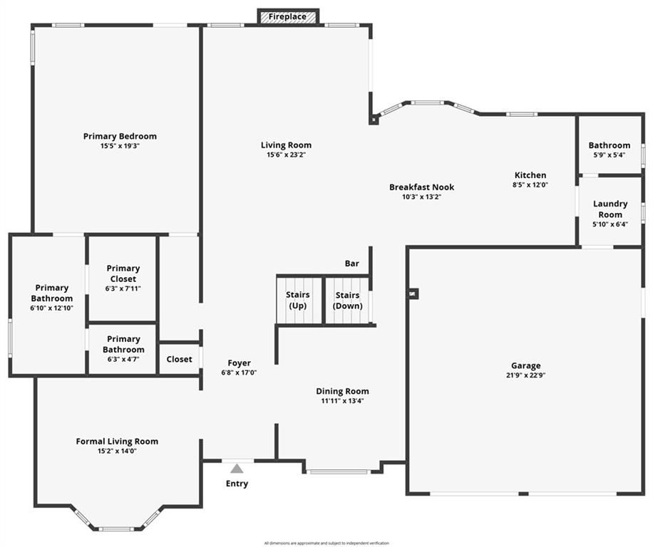
Welcome to 8003 Mullen Road—This Huge 1.5-story home is located in the heart of Lenexa and has lots of room to roam. Boasting 4 spacious bedrooms, 3.5 baths, a bonus loft area, and a spacious 2-car garage. Step inside to discover fresh interior paint and brand-new carpet, creating a clean, inviting foundation. The main level features the primary bedroom, formal living, and dining rooms, breakfast room, and an oversized great room with vaulted ceilings, a brick fireplace, and a wet bar—perfect for both everyday living and entertaining guests. All appliances remain, including the washer & dryer. Upstairs, the generously sized bedrooms provide plenty of space for everyone, while the walk-out basement is ready to become whatever you imagine—a home gym, media room, or additional living space. Outside, the fenced backyard is ready for play, relaxation, or weekend gatherings. And don't miss the new roof, bringing peace of mind. HOA amenities include a community pool for those hot summer days. Truly a great house in a very desirable neighborhood.

Directions
Lackman to 83rd, Right to Mullen, house is on the right.
Subdivision
Colony Hills
City
Lenexa
County
Johnson, KS
Property Type
Residential / Single Family Residence
Listing Updated
Mar 05, 2026 at 2:03pm
MLS Number
2605159
Property Tax
$5,229
Home Owners Association
Yes - Colony Hills HOA
Disclaimer
The information displayed on this page is confidential, proprietary, and copyrighted information of Heartland Multiple Listing Service, Inc. (“Heartland MLS”). Copyright 2026, Heartland Multiple Listing Service, Inc. Heartland MLS, Elite Realty and Agent Jo do not make any warranty or representation concerning the timeliness or accuracy of the information displayed herein. In consideration for the receipt of the information on this page, the recipient agrees to use the information solely for the private non-commercial purpose of identifying a property in which the recipient has a good faith interest in acquiring.
The data relating to real estate displayed on this website comes in part from the Heartland Multiple Listing Service database compilation. The properties displayed on this website may not be all of the properties in the Heartland MLS database compilation, or all of the properties listed with other brokers participating in the Heartland MLS IDX program. Detailed information about the properties displayed on this website includes the name of the listing company.
Information is deemed reliable but is not guaranteed.

Copyright © 2026 ELITE Realty.