7712 Robinson Street, Overland Park, KS 66204

     
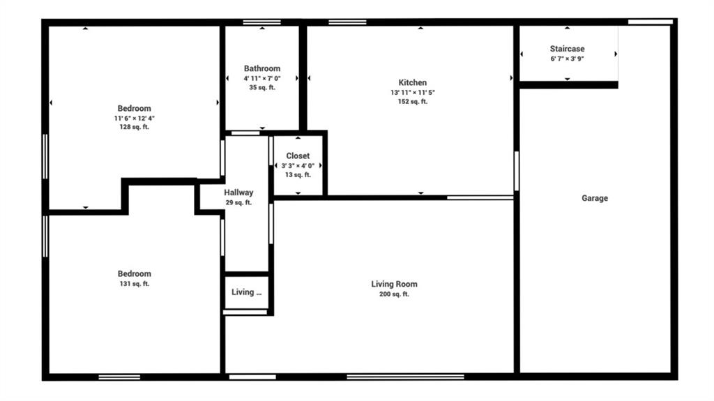
  • 2Beds
  •   
  • 2 Baths
  •  
  • 0½ Baths
  •  
  • 1,496Sq Ft
Mortgage Calculator

$250,000
 est. $1,164/mo

Opportunity in a prime Downtown Overland Park location. Just minutes from local dining, coffee shops, parks, and weekend farmers markets. This home offers solid bones and strong upside for the buyer willing to add their own updates and vision. Great potential to build equity in one of Overland Park’s most desirable and walkable areas. Ideal for investors or owner-occupants looking for a value-add opportunity in a location that continues to see strong demand.

Directions
Take Woodland Ave, I-35 N and Exits 225A-225C to Robinson St in Overland Park 18 min (12.5 mi) Turn right onto Robinson St Destination will be on the right
Subdivision
Santa Fe Vista
City
Overland Park
County
Johnson, KS
Property Type
Residential / Single Family Residence
Listing Updated
Mar 06, 2026 at 2:03pm
MLS Number
2604605
Property Tax
$2,695
Home Owners Association
No
Disclaimer
The information displayed on this page is confidential, proprietary, and copyrighted information of Heartland Multiple Listing Service, Inc. (“Heartland MLS”). Copyright 2026, Heartland Multiple Listing Service, Inc. Heartland MLS, Elite Realty and Agent Jo do not make any warranty or representation concerning the timeliness or accuracy of the information displayed herein. In consideration for the receipt of the information on this page, the recipient agrees to use the information solely for the private non-commercial purpose of identifying a property in which the recipient has a good faith interest in acquiring.
The data relating to real estate displayed on this website comes in part from the Heartland Multiple Listing Service database compilation. The properties displayed on this website may not be all of the properties in the Heartland MLS database compilation, or all of the properties listed with other brokers participating in the Heartland MLS IDX program. Detailed information about the properties displayed on this website includes the name of the listing company.
Information is deemed reliable but is not guaranteed.

Copyright © 2026 ELITE Realty.