8709 Antioch Road, Overland Park, KS 66212

     
  • 4Beds
  •   
  • 2 Baths
  •  
  • 2½ Baths
  •  
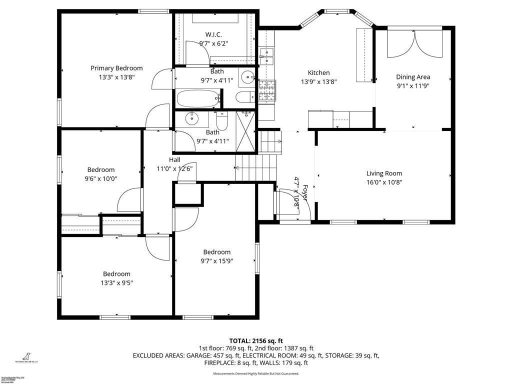
  • 2,156Sq Ft
Mortgage Calculator

$365,000
 est. $1,636/mo

Welcome to this updated 4-bedroom home offering comfort, space, and a convenient location for easy commuting. From the moment you enter, you’ll notice the wood flooring flowing through much of the home and the fresh interior paint that creates a bright, welcoming feel throughout. The home features a highly functional layout with 2 full bathrooms and 2 half bathrooms, providing flexibility and convenience for both everyday living and entertaining guests. Thoughtful updates throughout make this a true move-in ready opportunity. Major improvements add tremendous value and peace of mind for the next owner, including a recently updated HVAC system designed to ensure year-round comfort and efficiency. Even better, several big-ticket upgrades are already being taken care of, with the exterior currently being freshly painted, a brand-new roof scheduled to be installed prior to closing, and the interior freshly painted and ready for its new owner. With generous space, important updates already completed, and a convenient location, this home is ready to welcome its next chapter. Opportunities like this don’t last long—schedule your showing today.

Directions
Ttake I-435 to the Antioch Road exit and head north on Antioch Road. Continue past 95th Street and drive toward 87th Street. The property is located just south of 87th Street on Antioch Road near Shawnee Mission West High School.
Subdivision
Windgates
City
Overland Park
County
Johnson, KS
Property Type
Residential / Single Family Residence
Listing Updated
Mar 10, 2026 at 9:03am
MLS Number
2604500
Property Tax
$3,179
Home Owners Association
No
Disclaimer
The information displayed on this page is confidential, proprietary, and copyrighted information of Heartland Multiple Listing Service, Inc. (“Heartland MLS”). Copyright 2026, Heartland Multiple Listing Service, Inc. Heartland MLS, Elite Realty and Agent Jo do not make any warranty or representation concerning the timeliness or accuracy of the information displayed herein. In consideration for the receipt of the information on this page, the recipient agrees to use the information solely for the private non-commercial purpose of identifying a property in which the recipient has a good faith interest in acquiring.
The data relating to real estate displayed on this website comes in part from the Heartland Multiple Listing Service database compilation. The properties displayed on this website may not be all of the properties in the Heartland MLS database compilation, or all of the properties listed with other brokers participating in the Heartland MLS IDX program. Detailed information about the properties displayed on this website includes the name of the listing company.
Information is deemed reliable but is not guaranteed.

Copyright © 2026 ELITE Realty.