11123 - 11125 Leavenworth Road, Kansas City, KS 66109

Mortgage Calculator

$500,000
 est. $2,377/mo

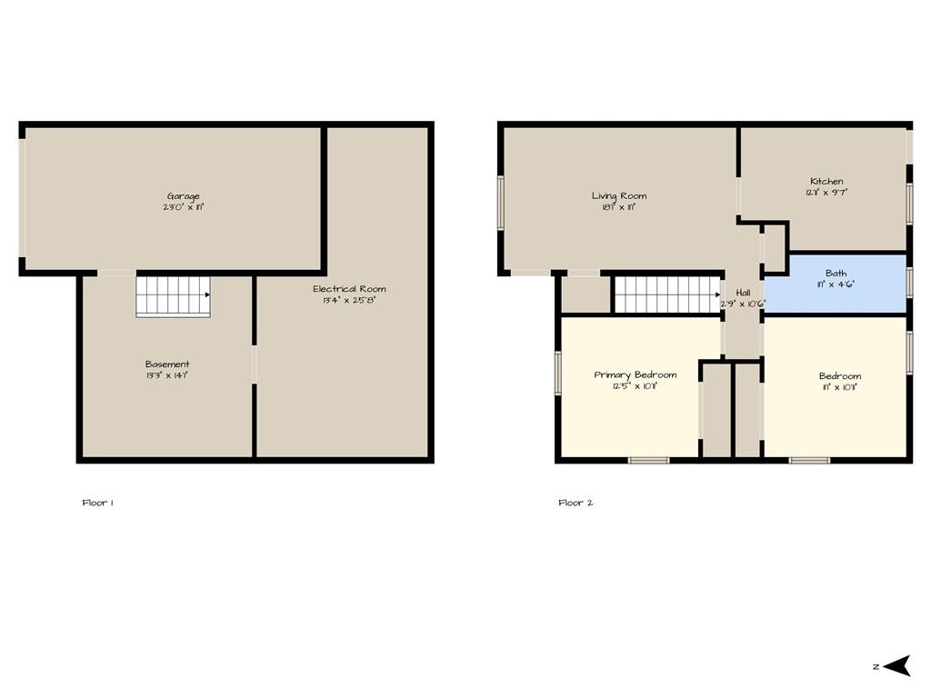
Investment Duplex + Land Assemblage Opportunity INCOME-PRODUCING DUPLEX located in the Piper area just minutes from The Legends shopping and entertainment district, Kansas Speedway, the new Mattel Adventure Park, and the proposed Kansas City Chiefs stadium development area. This well-maintained all-brick property sits within one of Wyandotte County’s fastest-growing entertainment and tourism corridors and offers immediate rental income with two tenant-occupied units. This unique duplex features two separate units with strong rental positioning. Unit #1: 3 bedrooms, 1 full bath plus bonus shower in the basement, walkout basement, 1-car garage, washer and dryer hookups, and fenced backyard with deck. Unit #2: 2 bedrooms, 1 full bath, 1-car garage, washer and dryer hookups, deck off the kitchen, and fenced backyard. Additional highlights include durable all-brick construction, excellent overall condition, and abundant off-street parking. Strategically positioned within a high-growth entertainment and tourism corridor, the property offers quick access to The Legends retail and entertainment district, Kansas Speedway, Children’s Mercy Park (Sporting KC), and the new Mattel Adventure Park. Easy access to I-435, K-7, shopping, dining, and major employment centers continues to drive strong housing demand in the Piper area. Land & Expansion Opportunity: The duplex is currently situated on approximately 10 acres and is in the process of a boundary adjustment. The property is expected to convey with approximately 2 acres (subject to survey and county approval). An adjacent property is also available for purchase, offering approximately 19 additional acres with a home, pond, shop, and outbuildings. Combined, the properties could offer over 20 acres in close proximity to major regional attractions and continued commercial growth. PROOF OF FUNDS REQUIRED. MINIMUM OF 48 HOUR NOTICE FOR SHOWINGS OF DUPLEX.

Directions
TAKE 435 TO LEAVENWORTH ROAD, GO WEST, PROPERTY IS ON THE SOUTH NEXT TO ROWE WINERY
Subdivision
Other
City
Kansas City
County
Wyandotte
Property Type
Residential Income / Duplex
Listing Updated
Mar 12, 2026 at 4:03am
MLS Number
2604333
Property Tax
$6,000
Zoning
$multi
Home Owners Association
No
Disclaimer
The information displayed on this page is confidential, proprietary, and copyrighted information of Heartland Multiple Listing Service, Inc. (“Heartland MLS”). Copyright 2026, Heartland Multiple Listing Service, Inc. Heartland MLS, Elite Realty and Agent Jo do not make any warranty or representation concerning the timeliness or accuracy of the information displayed herein. In consideration for the receipt of the information on this page, the recipient agrees to use the information solely for the private non-commercial purpose of identifying a property in which the recipient has a good faith interest in acquiring.
The data relating to real estate displayed on this website comes in part from the Heartland Multiple Listing Service database compilation. The properties displayed on this website may not be all of the properties in the Heartland MLS database compilation, or all of the properties listed with other brokers participating in the Heartland MLS IDX program. Detailed information about the properties displayed on this website includes the name of the listing company.
Information is deemed reliable but is not guaranteed.

Copyright © 2026 ELITE Realty.