17744 S Brockway Street, Olathe, KS 66062

     
  • 4Beds
  •   
  • 3 Baths
  •  
  • 0½ Baths
  •  
  • 2,841Sq Ft
Mortgage Calculator

$687,900
 est. $3,291/mo

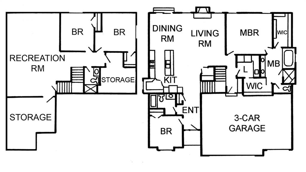
4 Car Garage, backs to Greenspace! Open floor plan built to maximize space. Custom kitchen cabinets, gas cook top, quartz tops, large walk-in pantry and plenty of kitchen storage. Convenient laundry off master, walk in shower (two head) plus tub. His and her closets unlike any reverse plan at this price. No more fighting over closet space. Unique, dry bar off family room, custom beams in family room with stone fireplace. Lower level is a full daylight for natural light. Large rec area has wet bar. Hallway to two more private bedrooms. Wonderful, covered deck, Sprinkler system. Photos are representation of home under construction. Actual home has 4 car front entry. All room sizes are estimate and subject to verification.

Directions
175th Street to Lone Elm, south to 177th Street, west to S. Brockway, right to address (Brockway is small cul-de-sac to the north off 177th Terrace).
Subdivision
Nottington Creek
City
Olathe
County
Johnson, KS
Property Type
Residential / Single Family Residence
Listing Updated
Feb 23, 2026 at 10:02am
MLS Number
2603331
Property Tax
$8,500
Home Owners Association
Yes - Nottington Creek Homes Assoc
Disclaimer
The information displayed on this page is confidential, proprietary, and copyrighted information of Heartland Multiple Listing Service, Inc. (“Heartland MLS”). Copyright 2026, Heartland Multiple Listing Service, Inc. Heartland MLS, Elite Realty and Agent Jo do not make any warranty or representation concerning the timeliness or accuracy of the information displayed herein. In consideration for the receipt of the information on this page, the recipient agrees to use the information solely for the private non-commercial purpose of identifying a property in which the recipient has a good faith interest in acquiring.
The data relating to real estate displayed on this website comes in part from the Heartland Multiple Listing Service database compilation. The properties displayed on this website may not be all of the properties in the Heartland MLS database compilation, or all of the properties listed with other brokers participating in the Heartland MLS IDX program. Detailed information about the properties displayed on this website includes the name of the listing company.
Information is deemed reliable but is not guaranteed.

Copyright © 2026 ELITE Realty.