20652 State Route Z Highway, Cosby, MO 64436

     
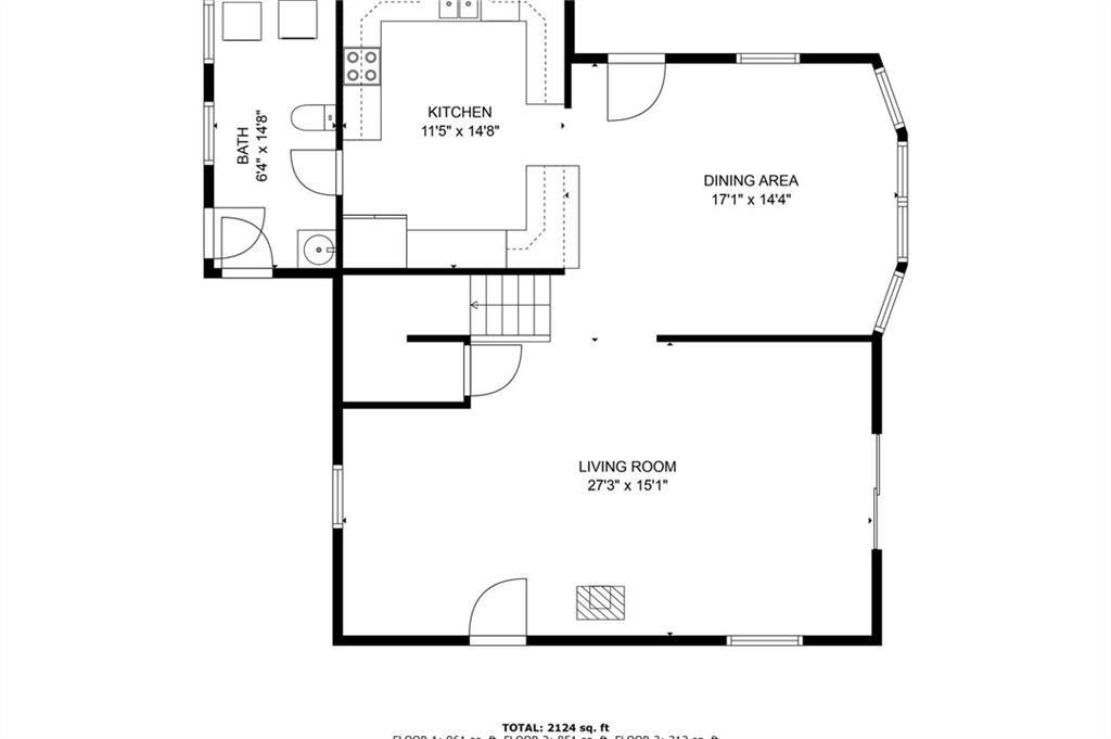
  • 5Beds
  •   
  • 1 Bath
  •  
  • 1½ Bath
  •  
  • 3,552Sq Ft
Mortgage Calculator

$450,000
 est. $1,839/mo

5.35 acre m/l mini farm within 10 minutes from Riverside/Frederick. Updates - PEX lines 2022, Electrical 2022 (underground lines to outbuildings), Flooring 2020/2024, bathroom updates 2023, newer deck, shed has 30 amp for RV connect, barn 12x24 stalls, 9' ceilings in basement, low taxes under $1,800, backup generator, 4-5 bedrooms, 1.5 baths, full basement, attached and detached garage, fenced. Avenue City elementary and Savannah Schools.

Directions
Frederick (6 Hwy) east to Route Z. North about 3 miles.
Subdivision
Other
City
Cosby
County
Andrew
Property Type
Residential / Single Family Residence
Listing Updated
Feb 18, 2026 at 7:02am
MLS Number
2602397
Property Tax
$1,790
Home Owners Association
No
Disclaimer
The information displayed on this page is confidential, proprietary, and copyrighted information of Heartland Multiple Listing Service, Inc. (“Heartland MLS”). Copyright 2026, Heartland Multiple Listing Service, Inc. Heartland MLS, Elite Realty and Agent Jo do not make any warranty or representation concerning the timeliness or accuracy of the information displayed herein. In consideration for the receipt of the information on this page, the recipient agrees to use the information solely for the private non-commercial purpose of identifying a property in which the recipient has a good faith interest in acquiring.
The data relating to real estate displayed on this website comes in part from the Heartland Multiple Listing Service database compilation. The properties displayed on this website may not be all of the properties in the Heartland MLS database compilation, or all of the properties listed with other brokers participating in the Heartland MLS IDX program. Detailed information about the properties displayed on this website includes the name of the listing company.
Information is deemed reliable but is not guaranteed.

Copyright © 2026 ELITE Realty.