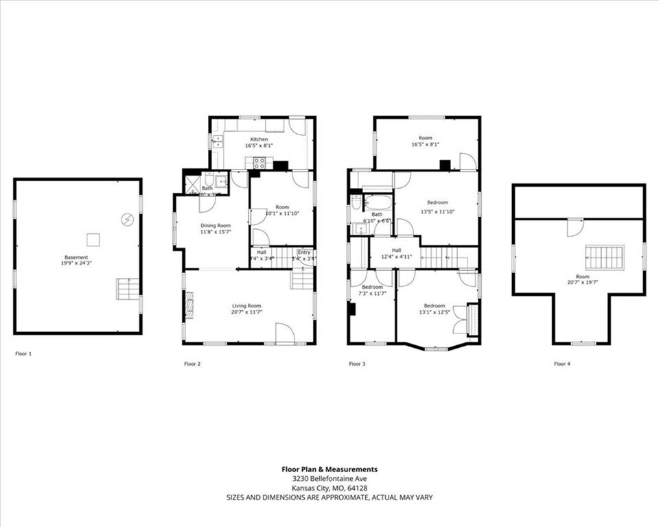
3230 Bellefontaine Avenue, Kansas City, MO 64128

     
  • 4Beds
  •   
  • 1 Bath
  •  
  • 1½ Bath
  •  
  • 2,610Sq Ft
Mortgage Calculator

$305,000
 est. $1,210/mo

Renovated 4 bedroom, 1.5 bath home, offering rare space, major mechanical improvements, and secure gated parking. All four bedrooms are above grade, including a private top level fourth bedroom that provides flexibility and separation. Major updates include newer roof, HVAC, water heater, and windows, providing meaningful long term value and confidence. The home features spacious living and dining areas filled with natural light, along with a functional kitchen equipped with newer appliances. One upper level bedroom includes an attached flex room ideal for office, study, or private retreat. The finished lower level is clean, painted, and highly usable, offering valuable additional functional space uncommon in comparable homes. Exterior features include fresh landscaping, elevated deck, fully fenced yard, and paved gated driveway providing secure off street parking plus additional parking spaces. Inspection completed and improvement documentation available. Property offered in present condition.

Directions
US-71 to Linwood Blvd east to Bellefontaine Ave, south to address.
Subdivision
East Linwood
City
Kansas City
County
Jackson
Property Type
Residential / Single Family Residence
Listing Updated
Feb 22, 2026 at 2:02pm
MLS Number
2601055
Property Tax
$776
Home Owners Association
No
Disclaimer
The information displayed on this page is confidential, proprietary, and copyrighted information of Heartland Multiple Listing Service, Inc. (“Heartland MLS”). Copyright 2026, Heartland Multiple Listing Service, Inc. Heartland MLS, Elite Realty and Agent Jo do not make any warranty or representation concerning the timeliness or accuracy of the information displayed herein. In consideration for the receipt of the information on this page, the recipient agrees to use the information solely for the private non-commercial purpose of identifying a property in which the recipient has a good faith interest in acquiring.
The data relating to real estate displayed on this website comes in part from the Heartland Multiple Listing Service database compilation. The properties displayed on this website may not be all of the properties in the Heartland MLS database compilation, or all of the properties listed with other brokers participating in the Heartland MLS IDX program. Detailed information about the properties displayed on this website includes the name of the listing company.
Information is deemed reliable but is not guaranteed.

Copyright © 2026 ELITE Realty.