4551 145th Terrace, Basehor, KS 66007

     
  • 4Beds
  •   
  • 3 Baths
  •  
  • 0½ Baths
  •  
  • 2,427Sq Ft
Mortgage Calculator

$595,000
 est. $3,001/mo

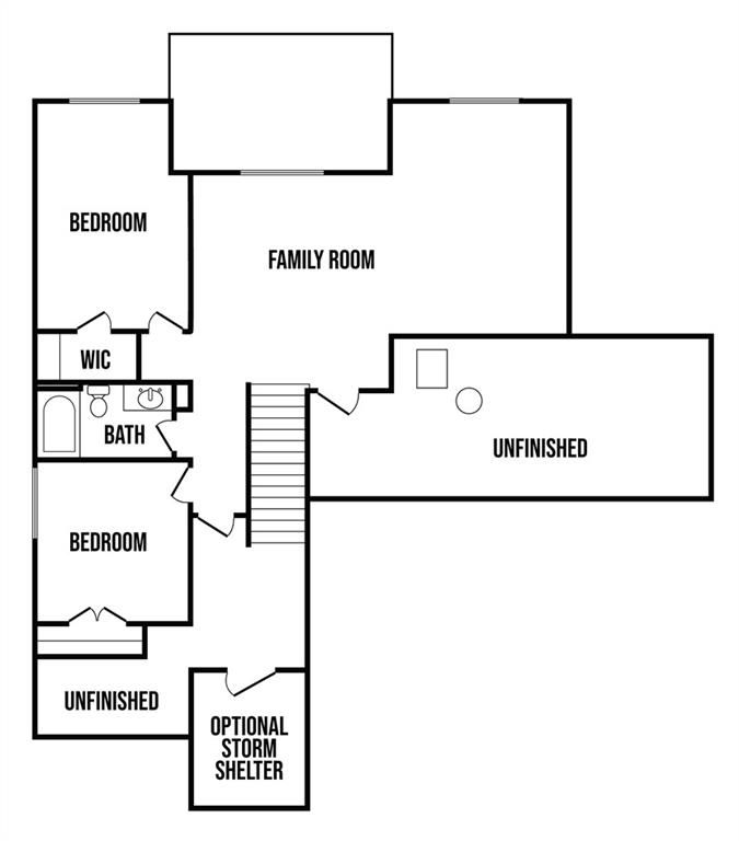
Lot 40. Colorado by Pfannes Homes. This home is estimated to be complete by April! FINISHED PHOTOS OF A PRIOR MODEL. This great home in a GOLF COURSE community with lawn maintenance/snow removal provided has all the upgrades! 3 car garage with the main 2 car section that is 25' deep and the 3rd car is 24' deep! This large garage also includes a mini-split to keep it comfortable. The open main living area includes a fireplace with cabinets, additional kitchen cabinets at the island, and a nice dining area. Oversized pantry! Plenty of light with windows all across the back. Large corner lot! Primary suite includes 17 x 14 bedroom, luxury bath and nice closet. The second bedroom is good sized with full bath and linen closet. The Lower level includes family room with wet bar, full bath. two bedrooms and plenty of storage. Quartz in kitchen and bathrooms, tile floors in laundry and baths and wood floors in entry, living, dining and kitchen. Zoned HVAC to keep the lower level comfortable and a low maintenance composite deck. Don't miss this opportunity to live in the Communities of Falcon Lakes, just off K7 with an easy 30 minute commute to the airport, 10 minutes to the Legends Entertainment and Shopping District and 30 minutes to Lawrence. Acclaimed Basehor-Linwood schools! Provided lawn maintenance includes mowing/trimming/blowing, weed/feed, landscape/tree trimming, sprinkler turn on/turn off. Snow removal over 2".

Directions
K-7 to Falcon Lakes Drive. Go west on Falcon Lakes Drive and turn right on 144th Terrace. Turn left on Aurora Lane and left on 145th Terrace. Home is on the southeast corner of 145th Terrace and Aurora Lane.
Subdivision
Falcon Lakes
City
Basehor
County
Leavenworth
Property Type
Residential / Villa
Listing Updated
Apr 27, 2026 at 6:04pm
MLS Number
2600931
Property Tax
$9,200
Home Owners Association
Yes - Falcon Lakes Homes Association
Disclaimer
The information displayed on this page is confidential, proprietary, and copyrighted information of Heartland Multiple Listing Service, Inc. (“Heartland MLS”). Copyright 2026, Heartland Multiple Listing Service, Inc. Heartland MLS, Elite Realty and Agent Jo do not make any warranty or representation concerning the timeliness or accuracy of the information displayed herein. In consideration for the receipt of the information on this page, the recipient agrees to use the information solely for the private non-commercial purpose of identifying a property in which the recipient has a good faith interest in acquiring.
The data relating to real estate displayed on this website comes in part from the Heartland Multiple Listing Service database compilation. The properties displayed on this website may not be all of the properties in the Heartland MLS database compilation, or all of the properties listed with other brokers participating in the Heartland MLS IDX program. Detailed information about the properties displayed on this website includes the name of the listing company.
Information is deemed reliable but is not guaranteed.

Copyright © 2026 ELITE Realty.