6949 Watson's Country Lane, Parkville, MO 64152

     
  • 4Beds
  •   
  • 4 Baths
  •  
  • 2½ Baths
  •  
  • 6,073Sq Ft
Mortgage Calculator

$1,875,000
 est. $8,642/mo

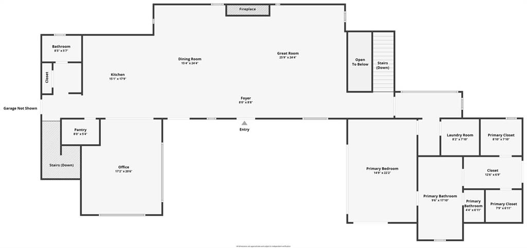
Positioned along a private road and elevated for panoramic views, this striking residence is filled with natural light thanks to walls of windows and thoughtfully placed sightlines. The exterior experience is just as impressive, featuring a lighted driveway with turnaround, extensive landscape lighting, and beautifully designed outdoor spaces including a private courtyard that enhances both privacy and flow. Inside, the design is bold and refined. The main living areas showcase soaring ceilings, statement fireplaces, and premium finishes throughout. The chef’s kitchen is outfitted with top-tier appliances, an oversized island, custom cabinetry, and a fully equipped butler’s pantry. A dedicated office with built-ins offers a polished workspace, while the drop zone off the garage keeps everyday living organized and seamless. All four bedrooms are true private suites, each with its own en suite bath. The primary suite is a retreat of its own, complete with spa-level finishes and a laundry room directly connected to the suite. A second laundry room is located on the lower level for added convenience. Half baths are thoughtfully placed on both the main and lower levels. The lower level is designed for entertaining and lifestyle living, featuring a stunning bar area with wine wall, wine refrigerator, and ice maker, along with a theater room for movie nights at home. The suspended garage level houses a private gym, adding a unique and functional design element rarely seen. Two staircases, including a dramatic floating staircase, connect the levels and elevate the home’s architectural appeal. Motorized window treatments throughout, top-of-the-line finishes, and exceptional attention to detail complete this offering. This is a rare opportunity to own a home that blends modern luxury, thoughtful design, and everyday functionality at the highest level. **OPEN HOUSE SATURDAY 2/14 11AM-1PM**

Directions
From Hwy 45 go North on NW Crooked Rd and take an immediate right and then left onto N National Drive. Continue on National Drive and then go left onto Watson's Country Lane to the home.
Subdivision
The National
City
Parkville
County
Platte
Property Type
Residential / Single Family Residence
Listing Updated
Feb 21, 2026 at 1:02pm
MLS Number
2600709
Property Tax
$19,234
Home Owners Association
Yes
Disclaimer
The information displayed on this page is confidential, proprietary, and copyrighted information of Heartland Multiple Listing Service, Inc. (“Heartland MLS”). Copyright 2026, Heartland Multiple Listing Service, Inc. Heartland MLS, Elite Realty and Agent Jo do not make any warranty or representation concerning the timeliness or accuracy of the information displayed herein. In consideration for the receipt of the information on this page, the recipient agrees to use the information solely for the private non-commercial purpose of identifying a property in which the recipient has a good faith interest in acquiring.
The data relating to real estate displayed on this website comes in part from the Heartland Multiple Listing Service database compilation. The properties displayed on this website may not be all of the properties in the Heartland MLS database compilation, or all of the properties listed with other brokers participating in the Heartland MLS IDX program. Detailed information about the properties displayed on this website includes the name of the listing company.
Information is deemed reliable but is not guaranteed.

Copyright © 2026 ELITE Realty.