2960 Hiawatha Street, Kansas City, KS 66104

     
  • 3Beds
  •   
  • 2 Baths
  •  
  • 0½ Baths
  •  
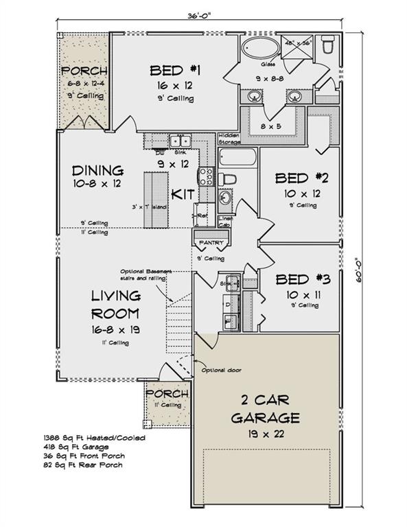
  • 1,388Sq Ft
Mortgage Calculator

$290,000
 est. $1,110/mo

Welcome to "Brookstone" IMR Homes 2 Car Garage Floor Plan. Why Choose a New Construction Home? - Modern Design & Energy Efficiency: Custom options, layouts, open floor plans, and the latest building materials to save on utilities. - Furnished Personalization: Pick finishes, colors, and fixtures to fit your style from day one. - Low Maintenance: New warranties, structural guarantees, and reduced immediate repair costs. - Appreciation Potential: New homes attract modern resale appeal and potential value appreciation. - Free eligibility screening with our preferred lenders who specialize in Kansas City, KS programs. - Step-by-step guidance through application processes and required documents. - Coordinated close with builder. Ongoing local program updates to maximize your benefits. Please call listing agent, Stormie Pryor for buyer's agent details. Showings may be limited due to construction. This is an active construction site - contact agent for progress updates. **Colors and style may vary from the photo shown.** days. Photos/Video of different plan, different decor - For *FINISH QUALITY ONLY.* Builder Uses Own Contract. We have a lot of inventory coming soon, be sure to ask! Estimated Completion May/June 2026

Directions
I-635 N, take exit 8 to merge onto k-5 toward 18th St. Turn right onto N 18th St. Turn left onto Quindaro Blvd. Turn left onto Hiawatha St.
Subdivision
Quindaro
City
Kansas City
County
Wyandotte
Property Type
Residential / Single Family Residence
Listing Updated
Feb 08, 2026 at 4:02am
MLS Number
2600632
Property Tax
$250
Home Owners Association
No
Disclaimer
The information displayed on this page is confidential, proprietary, and copyrighted information of Heartland Multiple Listing Service, Inc. (“Heartland MLS”). Copyright 2026, Heartland Multiple Listing Service, Inc. Heartland MLS, Elite Realty and Agent Jo do not make any warranty or representation concerning the timeliness or accuracy of the information displayed herein. In consideration for the receipt of the information on this page, the recipient agrees to use the information solely for the private non-commercial purpose of identifying a property in which the recipient has a good faith interest in acquiring.
The data relating to real estate displayed on this website comes in part from the Heartland Multiple Listing Service database compilation. The properties displayed on this website may not be all of the properties in the Heartland MLS database compilation, or all of the properties listed with other brokers participating in the Heartland MLS IDX program. Detailed information about the properties displayed on this website includes the name of the listing company.
Information is deemed reliable but is not guaranteed.

Copyright © 2026 ELITE Realty.