1009 Southwest Huntoon Street, Topeka, KS 66604

     
  • 4Beds
  •   
  • 1 Bath
  •  
  • 2½ Baths
  •  
  • 1,665Sq Ft
Mortgage Calculator

$200,000
 est. $809/mo

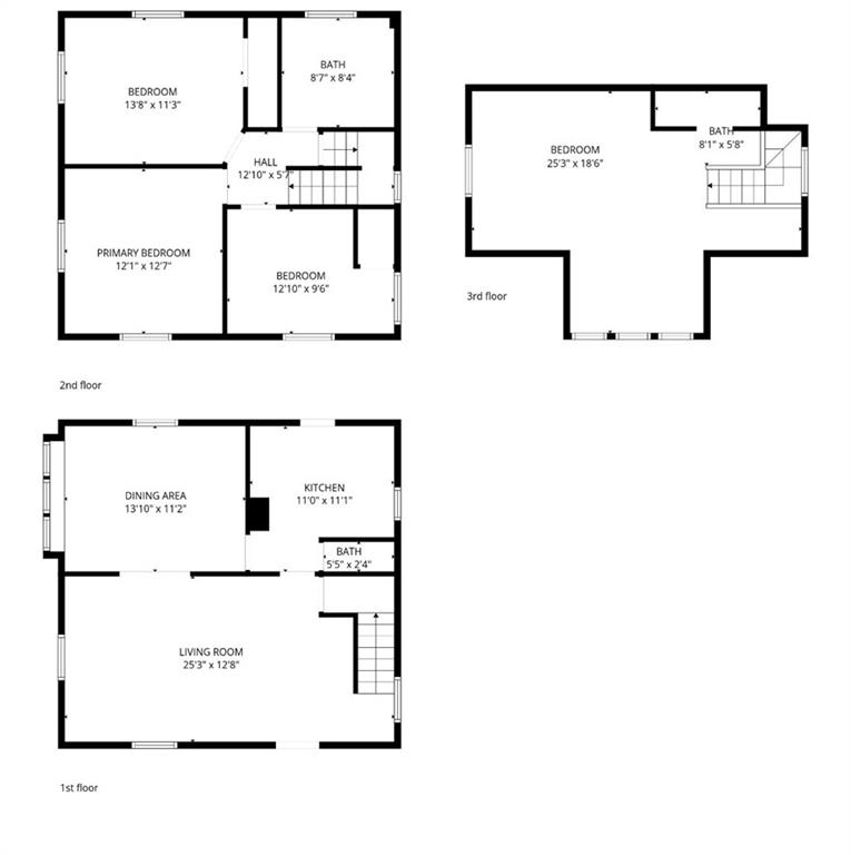
This 4-bedroom home is a standout find for both ambitious owner-users and investors looking for a property with heart and potential. The interior retains its original character, offering a unique charm that serves as the perfect foundation for your personal touches. The layout features a functional kitchen and dedicated dining area designed for easy daily living, complemented by a floor plan that includes one full bath and two convenient half-baths. Outside, the expansive side yard provides rare urban green space for gardening or entertaining. Motivated seller - secure a versatile property with significant upside

Directions
West On Huntoon, property on left right after Filmore.
Subdivision
Other
City
Topeka
County
Shawnee
Property Type
Residential / Single Family Residence
Listing Updated
Feb 05, 2026 at 4:02am
MLS Number
2599331
Property Tax
$687
Home Owners Association
No
Disclaimer
The information displayed on this page is confidential, proprietary, and copyrighted information of Heartland Multiple Listing Service, Inc. (“Heartland MLS”). Copyright 2026, Heartland Multiple Listing Service, Inc. Heartland MLS, Elite Realty and Agent Jo do not make any warranty or representation concerning the timeliness or accuracy of the information displayed herein. In consideration for the receipt of the information on this page, the recipient agrees to use the information solely for the private non-commercial purpose of identifying a property in which the recipient has a good faith interest in acquiring.
The data relating to real estate displayed on this website comes in part from the Heartland Multiple Listing Service database compilation. The properties displayed on this website may not be all of the properties in the Heartland MLS database compilation, or all of the properties listed with other brokers participating in the Heartland MLS IDX program. Detailed information about the properties displayed on this website includes the name of the listing company.
Information is deemed reliable but is not guaranteed.

Copyright © 2026 ELITE Realty.