915 WALNUT Street, Valley Falls, KS 66088

     
  • 3Beds
  •   
  • 2 Baths
  •  
  • 0½ Baths
  •  
  • 1,728Sq Ft
Mortgage Calculator

$287,500
 est. $1,477/mo

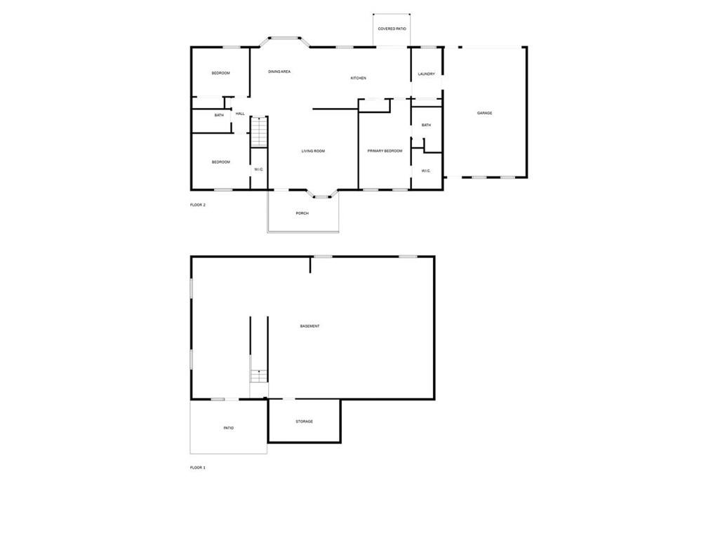
Welcome to this thoughtfully designed custom ranch-style home offering over 1,700+/- sqft of main-level living! Featuring 3 spacious bedrooms—including a split floor plan with the primary suite on one side and two additional bedrooms on the other—this layout offers privacy and comfort for the whole family. The heart of the home is the expansive kitchen, complete with custom oak cabinetry, upgraded storage solutions, double oven and all appliances, and pantry. Enjoy the convenience of a main-level laundry room and an attached 2-car garage with tons of overhead storage. This home was built with accessibility in mind, offering wide doorways and easy-flow spaces ideal for handicap needs. The full walk-out basement mirrors the main level with 9 ft ceilings and is already plumbed for a bathroom—perfect for adding bedrooms, a rec room, or even an in-law suite. Tons of potential for added space and equity, as well as a storm shelter for Kansas weather. Located just minutes from charming downtown amenities, the community pool, gas station, and local stores, with a quick commute to Topeka—this home checks all the boxes for comfort, space, and convenience! This home has been virtually staged to illustrate its potential.

Directions
K4 heading into Valley Falls, turn left onto 16Hwy, left on Walnut Street to property. (garage and additional parking around back).
Subdivision
Valley Falls
City
Valley Falls
County
Jefferson, KS
Property Type
Residential / Single Family Residence
Listing Updated
Jan 31, 2026 at 4:01am
MLS Number
2598270
Property Tax
$4,763
Home Owners Association
No
Disclaimer
The information displayed on this page is confidential, proprietary, and copyrighted information of Heartland Multiple Listing Service, Inc. (“Heartland MLS”). Copyright 2026, Heartland Multiple Listing Service, Inc. Heartland MLS, Elite Realty and Agent Jo do not make any warranty or representation concerning the timeliness or accuracy of the information displayed herein. In consideration for the receipt of the information on this page, the recipient agrees to use the information solely for the private non-commercial purpose of identifying a property in which the recipient has a good faith interest in acquiring.
The data relating to real estate displayed on this website comes in part from the Heartland Multiple Listing Service database compilation. The properties displayed on this website may not be all of the properties in the Heartland MLS database compilation, or all of the properties listed with other brokers participating in the Heartland MLS IDX program. Detailed information about the properties displayed on this website includes the name of the listing company.
Information is deemed reliable but is not guaranteed.

Copyright © 2026 ELITE Realty.