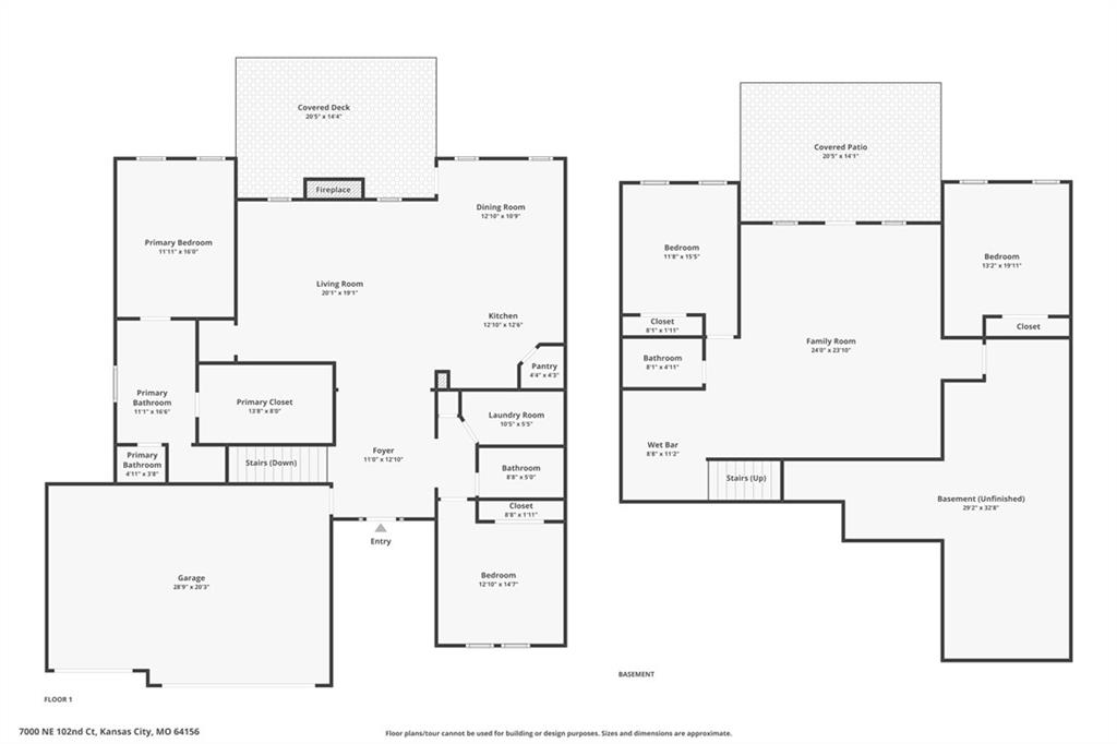
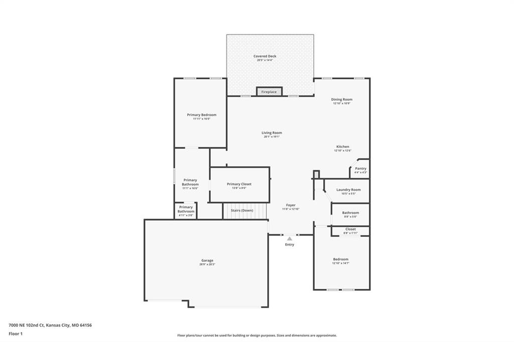
Welcome to Sara’s Meadow, an exciting new subdivision and home to The Drake by Hoffmann Custom Homes — a beautifully designed Reverse 1.5 Story that blends warmth, modern style, and smart construction. From the moment you walk in, this home is filled with natural light, soaring ceilings, and refined finishes throughout. The main level features gorgeous honey-toned engineered hardwood floors and a chef-inspired kitchen showcasing light, creamy granite countertops, brushed nickel hardware, a gas cooktop and wall oven, enameled cabinetry, and under-cabinet lighting that makes the space shine — perfect for those who love to entertain! The great room is anchored by an eye-catching earth-toned stone fireplace with enameled wood trim accents and opens seamlessly to the covered deck, ideal for relaxing. The main-level owner’s suite truly feels like a private retreat with a freestanding soaker tub, double vanities, and a generous walk-in closet. A second bedroom on the main floor makes the perfect nursery, home office, or guest space, along with a full bath and a conveniently located laundry room. Downstairs, the finished walkout lower level adds even more space with two additional bedrooms, a full bath, and a spacious rec room complete with a granite wet bar — plus walkout access to a covered patio and an oversized backyard that feels both peaceful and private. Thoughtfully engineered for modern living, this home includes 2x6 exterior wall construction, is prewired for solar panels, offers EV charger compatibility, energy-saving features, and comes backed by a 10-year structural warranty. If you’ve been waiting for the perfect blend of style, quality, luxury, comfort, and location — you need to come experience “The Drake” in Sara’s Meadow. This one is a showstopper!
Copyright © 2026 ELITE Realty.