501 Callie Road, Bates City, MO 64011

     
  • 3Beds
  •   
  • 2 Baths
  •  
  • 1½ Bath
  •  
  • 1,426Sq Ft
Mortgage Calculator

$385,000
 est. $1,452/mo

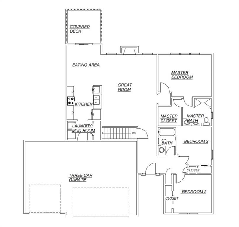
Ranch Home, 3 bedrooms, 2 baths, 3 car garage, Walkout Basement, Custom cabinets, Pantry, Granite counter tops, Covered deck, LVP Flooring Main Living and Master bedroom, Tile bathroom floors, Main floor Laundry room. Quick Access to I 70, Low Lafayette County Taxes

Directions
I70 to Bates City exit. South on Z to Golden Belt Rd, West to Walton Rd, South to Carl Dr, West to Callie Rd
Subdivision
Campbell's Development
City
Bates City
County
Lafayette
Property Type
Residential / Single Family Residence
Listing Updated
Jan 15, 2026 at 10:01am
MLS Number
2595886
Property Tax
$75
Home Owners Association
Yes - Campbell Heritage Farm
Disclaimer
The information displayed on this page is confidential, proprietary, and copyrighted information of Heartland Multiple Listing Service, Inc. (“Heartland MLS”). Copyright 2026, Heartland Multiple Listing Service, Inc. Heartland MLS, Elite Realty and Agent Jo do not make any warranty or representation concerning the timeliness or accuracy of the information displayed herein. In consideration for the receipt of the information on this page, the recipient agrees to use the information solely for the private non-commercial purpose of identifying a property in which the recipient has a good faith interest in acquiring.
The data relating to real estate displayed on this website comes in part from the Heartland Multiple Listing Service database compilation. The properties displayed on this website may not be all of the properties in the Heartland MLS database compilation, or all of the properties listed with other brokers participating in the Heartland MLS IDX program. Detailed information about the properties displayed on this website includes the name of the listing company.
Information is deemed reliable but is not guaranteed.

Copyright © 2026 ELITE Realty.