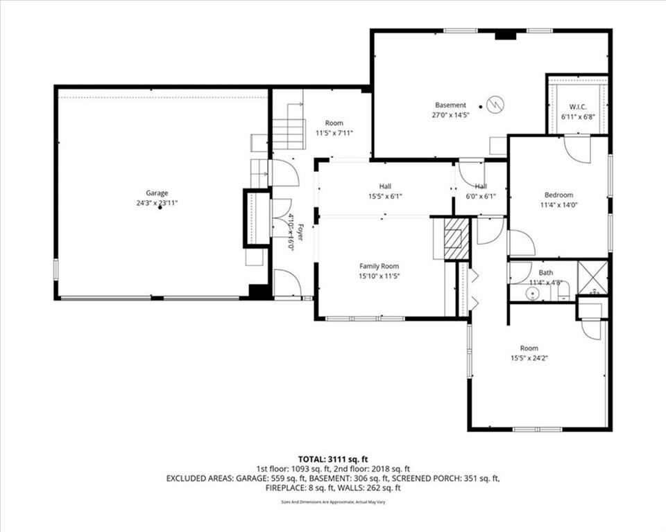
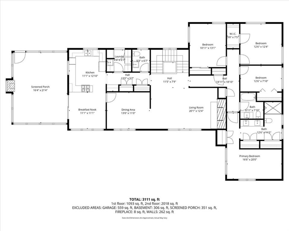
450 Hillcrest Street, Lake Quivira, KS 66217

     
  • 6Beds
  •   
  • 3 Baths
  •  
  • 1½ Bath
  •  
  • 3,201Sq Ft
Mortgage Calculator

$1,275,000
 est. $5,576/mo

Incredible opportunity inside the secured gates of Lake Quivira -Updated throughout – Main level offers a spacious Great Room with a striking stone wall and gas fireplace, vaulted ceiling & wood flooring. Formal dining room with wood floors adjoins the spacious breakfast room & well-appointed kitchen featuring granite countertops, double oven, 6-burner gas cooktop, stainless steel appliances, pantry & newer Dacor refrigerator. Additional main-level amenities include laundry room with built-ins & sink and a convenient half bath off the kitchen. Enjoy the fantastic 18’x25’screened porch with vaulted ceiling, fan, fireplace and outdoor TV. Primary suite includes a generously sized bedroom, updated bath & his-&-hers closets. Three ADDITIONAL main-level bedrooms feature wood floors & ceiling fans. The hall bathroom has been updated with ceramic tile, a new shower/tub, & granite countertop. Lower level features a cozy family room with stone fireplace, built-in bookshelves and cabinetry & a dedicated TV area. Two lower-level bedrooms & a full bath complete this space; the bath has been updated with a new shower & granite countertop. Great wooded lot with front and back patio areas. (Stairwell & dining room light fixtures do not convey with the home). Private dock site # 269 with nearly new steel-framed floating dock. LQ is a private, 18-hole golf course & lake community with 24/7 gated security & many amenities to enjoy including: 220 acre private lake for boating, skiing, fishing, kayaking, sailing & swimming. Additional amenities: extensive Nature Trails system, Equestrian facilities, private, full service clubhouse, Community Center with workout facilities, lap pool, indoor & outdoor tennis and pickleball courts, exercise classes and more. One time $40,000 required membership fee and monthly HOA. (visit LakeQuivira.org for more information) MANY clubs to join, kids summer rec programs….indoor & outdoor fun & activities for the entire family & people of all ages.

Directions
After passing through security at the main gate, proceed south and take the first curve to the left (do not go in front of the Clubhouse), proceed on Lakeshore East past the community beach and sailing pavillion; Proceed up the hill and continue straight at the top of the hill on Hillcrest East St. PAST the turn to Lakeshore East The house will be on your right, the 4th house past Lakeshore East. (the second home past the new home under construction).
Subdivision
Lake Quivira
City
Lake Quivira
County
Johnson, KS
Property Type
Residential / Single Family Residence
Listing Updated
Mar 04, 2026 at 9:03am
MLS Number
2595262
Property Tax
$9,478
Home Owners Association
Yes - Lake Quivira
Disclaimer
The information displayed on this page is confidential, proprietary, and copyrighted information of Heartland Multiple Listing Service, Inc. (“Heartland MLS”). Copyright 2026, Heartland Multiple Listing Service, Inc. Heartland MLS, Elite Realty and Agent Jo do not make any warranty or representation concerning the timeliness or accuracy of the information displayed herein. In consideration for the receipt of the information on this page, the recipient agrees to use the information solely for the private non-commercial purpose of identifying a property in which the recipient has a good faith interest in acquiring.
The data relating to real estate displayed on this website comes in part from the Heartland Multiple Listing Service database compilation. The properties displayed on this website may not be all of the properties in the Heartland MLS database compilation, or all of the properties listed with other brokers participating in the Heartland MLS IDX program. Detailed information about the properties displayed on this website includes the name of the listing company.
Information is deemed reliable but is not guaranteed.

Copyright © 2026 ELITE Realty.