960 Pacific Avenue, Kansas City, KS 66101

Mortgage Calculator

$220,000
 est. $1,199/mo

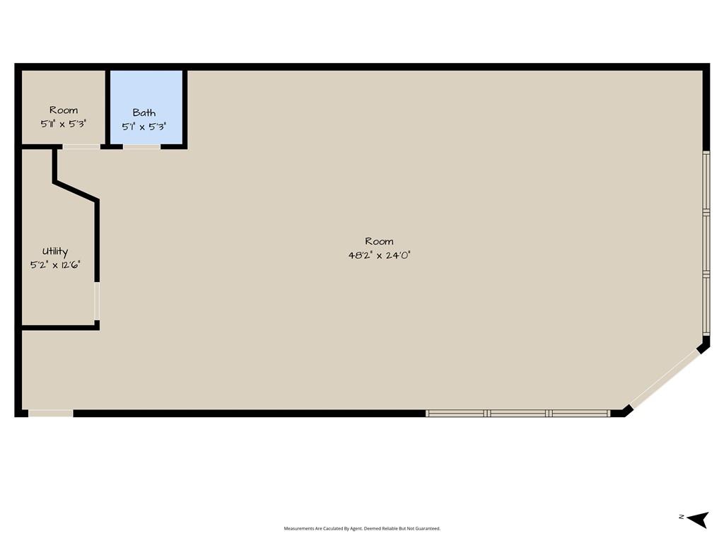
GREAT COMMERCIAL BUILDING ON CORNER LOT WITH PARKING! Step into 1,233 sq ft of heated and cooled open space ready for your business ideas. This affordable commercial property sits on a prime corner with a large fenced parking lot and a detached 2-car garage. Zoned CP-1, it’s perfect for a variety of commercial or light industrial uses. Endless possibilities await—bring your vision to life in a location that gets noticed!

Directions
Property is located on the NE corner of 10th and Pacific.
Subdivision
Ferree Pl
City
Kansas City
County
Wyandotte
Property Type
Commercial Sale / Retail
Listing Updated
Dec 18, 2025 at 10:12am
MLS Number
2592246
Property Tax
$4,473
Zoning
$CP-1
Disclaimer
The information displayed on this page is confidential, proprietary, and copyrighted information of Heartland Multiple Listing Service, Inc. (“Heartland MLS”). Copyright 2026, Heartland Multiple Listing Service, Inc. Heartland MLS, Elite Realty and Agent Jo do not make any warranty or representation concerning the timeliness or accuracy of the information displayed herein. In consideration for the receipt of the information on this page, the recipient agrees to use the information solely for the private non-commercial purpose of identifying a property in which the recipient has a good faith interest in acquiring.
The data relating to real estate displayed on this website comes in part from the Heartland Multiple Listing Service database compilation. The properties displayed on this website may not be all of the properties in the Heartland MLS database compilation, or all of the properties listed with other brokers participating in the Heartland MLS IDX program. Detailed information about the properties displayed on this website includes the name of the listing company.
Information is deemed reliable but is not guaranteed.

Copyright © 2026 ELITE Realty.