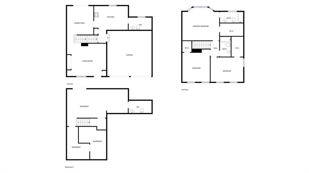
8700 Northwest 81st Terrace, Kansas City, MO 64152

     
  • 3Beds
  •   
  • 2 Baths
  •  
  • 1½ Bath
  •  
  • 1,681Sq Ft
Mortgage Calculator

$296,000
 est. $1,414/mo

Welcome to this beautifully maintained property located at 8700 NW 81st Ter, where the freshly painted interior sets a bright, modern tone in the living room, creating an inviting place to unwind and gather. The kitchen is a chef’s dream with stainless steel appliances and an eye-catching accent backsplash, designed for easy cooking and everyday enjoyment. The bedrooms offer a peaceful retreat that balances comfort and style. Bathrooms are clean and well cared for, encouraging a relaxing routine. Step outside to a welcoming deck, while the fenced backyard provides privacy and ample space for outdoor activities.. Included 100-Day Home Warranty with buyer activation

Directions
Head west on NW Barry Rd toward NW Prairie View Rd Turn left onto NW Mace Rd Turn left onto NW 81st Terrace
Subdivision
Copper Creek
City
Kansas City
County
Platte
Property Type
Residential / Single Family Residence
Listing Updated
Jan 17, 2026 at 7:01pm
MLS Number
2591957
Property Tax
$3,629
Home Owners Association
No
Disclaimer
The information displayed on this page is confidential, proprietary, and copyrighted information of Heartland Multiple Listing Service, Inc. (“Heartland MLS”). Copyright 2026, Heartland Multiple Listing Service, Inc. Heartland MLS, Elite Realty and Agent Jo do not make any warranty or representation concerning the timeliness or accuracy of the information displayed herein. In consideration for the receipt of the information on this page, the recipient agrees to use the information solely for the private non-commercial purpose of identifying a property in which the recipient has a good faith interest in acquiring.
The data relating to real estate displayed on this website comes in part from the Heartland Multiple Listing Service database compilation. The properties displayed on this website may not be all of the properties in the Heartland MLS database compilation, or all of the properties listed with other brokers participating in the Heartland MLS IDX program. Detailed information about the properties displayed on this website includes the name of the listing company.
Information is deemed reliable but is not guaranteed.

Copyright © 2026 ELITE Realty.