5812 Northwest PARKDALE Circle, Kansas City, MO 64151

     
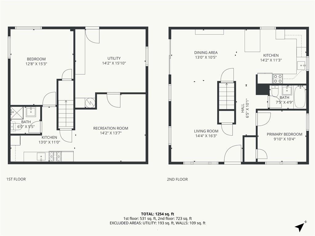
  • 2Beds
  •   
  • 2 Baths
  •  
  • 0½ Baths
  •  
  • 1,288Sq Ft
Mortgage Calculator

$270,000
 est. $1,184/mo

Beautifully modernized ranch home on a sprawling 1-acre lot, offering two distinct living spaces and endless possibilities. The main level features a spacious living room, dining area with built-ins, a full bath, primary bedroom, and a stunning kitchen with an island, quartz countertops, abundant custom cabinetry, and stainless-steel appliances. The lower level—accessible from its own private entrance or the main level—includes a second kitchen, living room, bedroom, bathroom, and generous storage, making it ideal for multi-generational living, guests, or added flexibility. Step outside from the main living area onto a large deck overlooking a lush, treed setting—perfect for entertaining or relaxing in nature. The front yard is fenced, and the property also offers a shed, camper/RV hookups, fire pit, and garden beds. Additional highlights include scratch-resistant vinyl flooring throughout, updated lighting and fixtures, new sewer line from the home to the septic tank, new deck, with all updates completed within the last two years. Enjoy the perfect blend of a peaceful, rural feel with easy access to restaurants, shopping, and downtown Parkville. Create your own homestead—yes, NO HOA and chickens welcome! Shed to be finished by 1/19!

Directions
TURN ON PARKDALE ROAD FROM GREEN HILLS ROAD FOLLOW TO PARKDALE CIRCLE 5812- LOCATED ON CORNER LOT - ***PLEASE PARK IN THE GRAVEL DRIVEWAY AND USE THE BACKDOOR W/ LOCKBOX FOR ENTRANCE*** THERE IS A FRIENDLY DOG THAT MAY BE KENNELED IN THE BASEMENT.
Subdivision
Parkdale Woods
City
Kansas City
County
Platte
Property Type
Residential / Single Family Residence
Listing Updated
Jan 12, 2026 at 3:01pm
MLS Number
2591872
Property Tax
$2,045
Home Owners Association
No
Disclaimer
The information displayed on this page is confidential, proprietary, and copyrighted information of Heartland Multiple Listing Service, Inc. (“Heartland MLS”). Copyright 2026, Heartland Multiple Listing Service, Inc. Heartland MLS, Elite Realty and Agent Jo do not make any warranty or representation concerning the timeliness or accuracy of the information displayed herein. In consideration for the receipt of the information on this page, the recipient agrees to use the information solely for the private non-commercial purpose of identifying a property in which the recipient has a good faith interest in acquiring.
The data relating to real estate displayed on this website comes in part from the Heartland Multiple Listing Service database compilation. The properties displayed on this website may not be all of the properties in the Heartland MLS database compilation, or all of the properties listed with other brokers participating in the Heartland MLS IDX program. Detailed information about the properties displayed on this website includes the name of the listing company.
Information is deemed reliable but is not guaranteed.

Copyright © 2026 ELITE Realty.