2410 Northeast 111th Terrace, Kansas City, MO 64155

     
  • 4Beds
  •   
  • 3 Baths
  •  
  • 2½ Baths
  •  
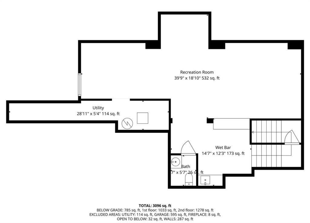
  • 3,096Sq Ft
Mortgage Calculator

$635,000
 est. $2,968/mo

Welcome to this stunning two-story home featuring 4 spacious bedrooms, 3 full baths, and 2 half baths, offering the perfect blend of comfort, functionality, and style. Charming curb appeal begins with a covered front porch that welcomes you into an open-concept layout connecting the family room, dining area, and kitchen — ideal for everyday living and entertaining. The finished basement provides versatile space perfect for recreation, a home office, or guest accommodations. Step outside to your private backyard oasis, where the inground heated saltwater pool creates the ultimate setting for relaxation and memorable gatherings with family and friends. Located in one of the area’s most desirable neighborhoods, this home offers access to top-rated Staley schools, nearby parks, shopping, dining, premier golfing, and quick highway access to enjoy everything Kansas City has to offer. Enjoy the perfect balance of relaxing and entertaining — you’ll fall in love with this home now and appreciate it even more when pool season returns. WELCOME HOME!!

Directions
152 to Maplewoods Pkw North, Right to NE 111th Terr, home on Left.
Subdivision
Staley Hills
City
Kansas City
County
Clay
Property Type
Residential / Single Family Residence
Listing Updated
Feb 28, 2026 at 3:02pm
MLS Number
2591133
Property Tax
$7,007
Home Owners Association
Yes
Disclaimer
The information displayed on this page is confidential, proprietary, and copyrighted information of Heartland Multiple Listing Service, Inc. (“Heartland MLS”). Copyright 2026, Heartland Multiple Listing Service, Inc. Heartland MLS, Elite Realty and Agent Jo do not make any warranty or representation concerning the timeliness or accuracy of the information displayed herein. In consideration for the receipt of the information on this page, the recipient agrees to use the information solely for the private non-commercial purpose of identifying a property in which the recipient has a good faith interest in acquiring.
The data relating to real estate displayed on this website comes in part from the Heartland Multiple Listing Service database compilation. The properties displayed on this website may not be all of the properties in the Heartland MLS database compilation, or all of the properties listed with other brokers participating in the Heartland MLS IDX program. Detailed information about the properties displayed on this website includes the name of the listing company.
Information is deemed reliable but is not guaranteed.

Copyright © 2026 ELITE Realty.