5538 MAPLE Street, Mission, KS 66202

     
  • 3Beds
  •   
  • 2 Baths
  •  
  • 0½ Baths
  •  
  • 1,700Sq Ft
Mortgage Calculator

$419,900
 est. $1,922/mo

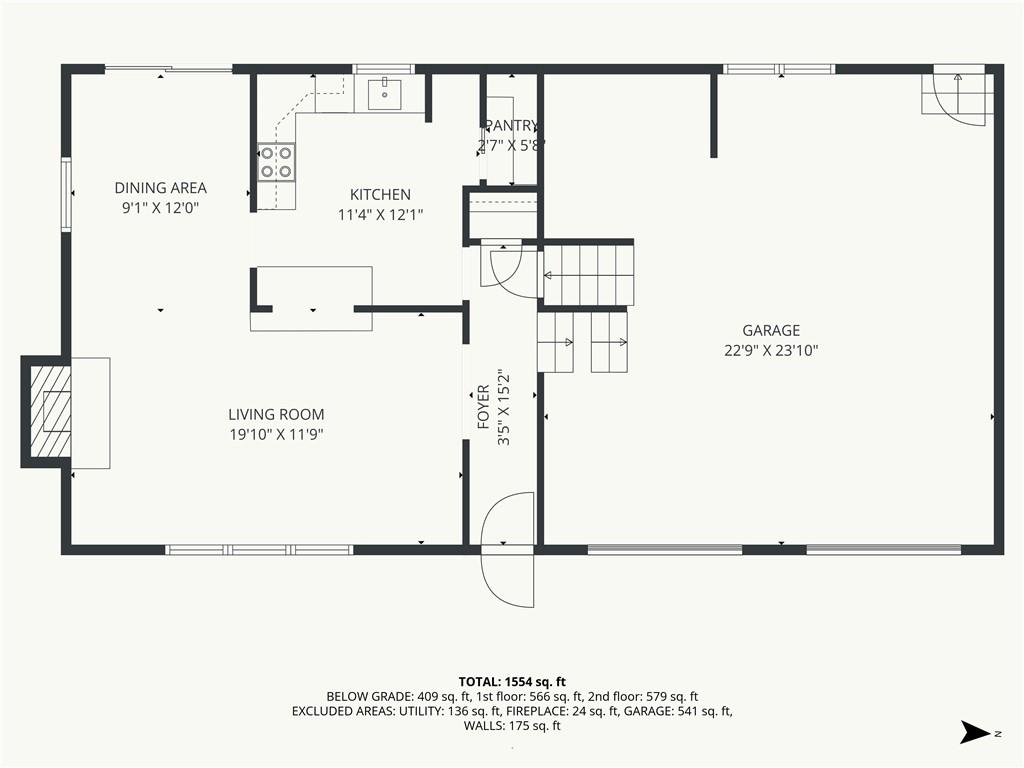
(*UPDATE - A completely new concrete Driveway and Patio are being poured this week!) Discover the perfect blend of Mid-Century Modern charm and the inviting, warm color palette of 2026 in this truly remarkable home located in the heart of Mission. With 3 bedrooms and 2 bathrooms, this residence feels like NEW throughout and is designed for both comfort and style. Just a short walk from some of the best local coffee shops, restaurants, and parks, your new home offers unparalleled convenience and lifestyle options. Enjoy seamless indoor-outdoor living perfect for gatherings with family and friends. Enjoy the brand new kitchen, a spacious pantry and island connecting the kitchen to the main living space. An especially large dining space also flowing from the kitchen to make the first floor an excellent spot for family time or entertaining. The expansive, fenced backyard is perfect for gathering, gardening, or letting the kids and dogs run around. Large windows invite natural light into every room, enhancing the warmth of this delightful home. This charming residence on Maple St. is not just a house; it is a warm and welcoming Home where memories are made. Don’t miss the opportunity to make it yours!

Directions
Shawnee Mission Parkway to Nall Ave to left on West 55th to Right on Maple to home on Left.
Subdivision
Mission Hill Ac
City
Mission
County
Johnson, KS
Property Type
Residential / Single Family Residence
Listing Updated
Dec 03, 2025 at 10:12am
MLS Number
2587908
Property Tax
$4,148
Home Owners Association
No
Disclaimer
The information displayed on this page is confidential, proprietary, and copyrighted information of Heartland Multiple Listing Service, Inc. (“Heartland MLS”). Copyright 2025, Heartland Multiple Listing Service, Inc. Heartland MLS, Elite Realty and Agent Jo do not make any warranty or representation concerning the timeliness or accuracy of the information displayed herein. In consideration for the receipt of the information on this page, the recipient agrees to use the information solely for the private non-commercial purpose of identifying a property in which the recipient has a good faith interest in acquiring.
The data relating to real estate displayed on this website comes in part from the Heartland Multiple Listing Service database compilation. The properties displayed on this website may not be all of the properties in the Heartland MLS database compilation, or all of the properties listed with other brokers participating in the Heartland MLS IDX program. Detailed information about the properties displayed on this website includes the name of the listing company.
Information is deemed reliable but is not guaranteed.

Copyright © 2025 ELITE Realty.