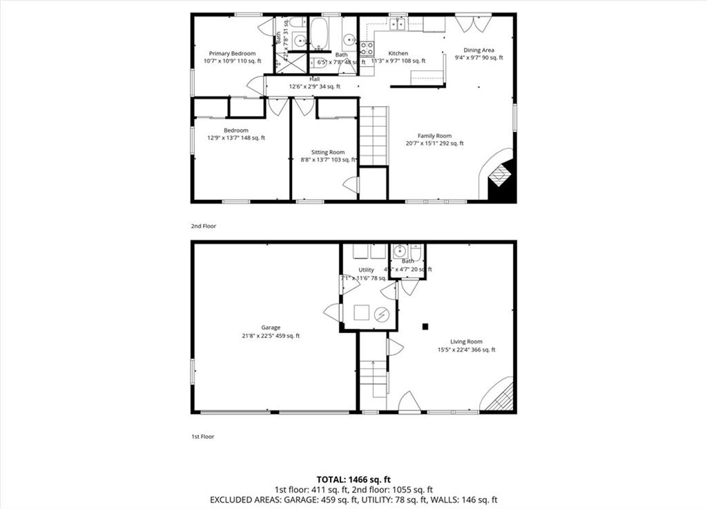
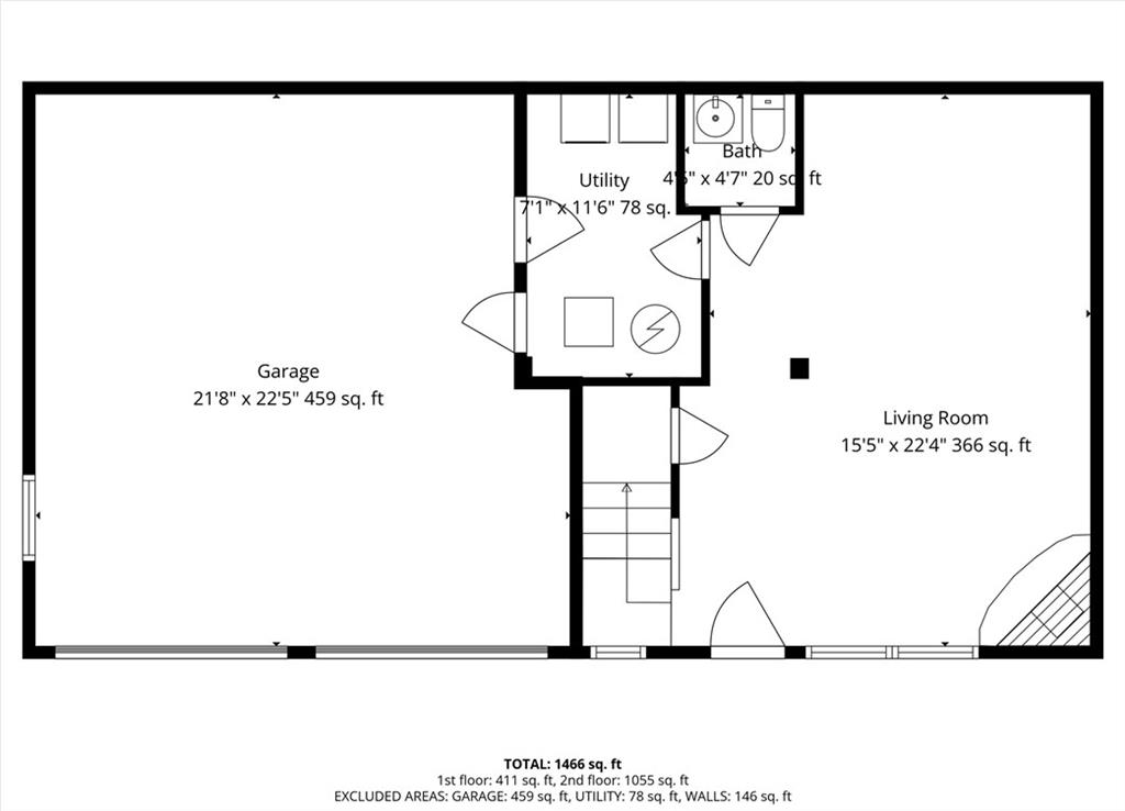
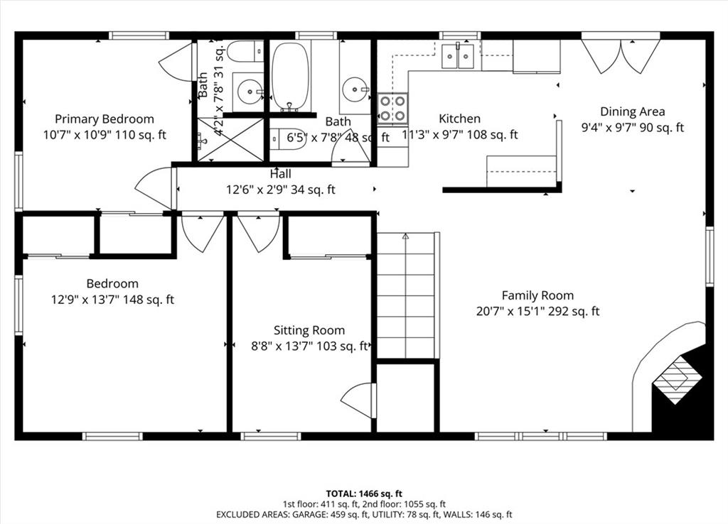
9216 Wedd Drive, Overland Park, KS 66212

     
  • 3Beds
  •   
  • 2 Baths
  •  
  • 1½ Bath
  •  
  • 1,672Sq Ft
Mortgage Calculator

$339,000
 est. $1,556/mo

Don’t miss this charming three-bedroom, two-and-a-half-bath home perfectly situated just minutes from shops, restaurants, and the newly renovated Strang Park. In front of the home, a brand-new street and sidewalks, along with fresh exterior paint on the front and sides, give this home standout curb appeal. Step inside to discover one of two spacious living areas, a powder room, and a convenient laundry room. Upstairs, enjoy the open-flow layout featuring a bright and sunny second living space, dining area, and an updated kitchen fully equipped with all appliances, including the refrigerator. Down the hall, the comfortable primary suite offers an updated ensuite bathroom, while two additional bedrooms and a second full bathroom complete the level. Step outside to the spacious, fully fenced backyard, offering privacy and plenty of room to play, garden, or simply unwind. This well-maintained home shines with fresh interior paint, hardwood floors throughout the main level, and abundant natural light. Located near Oak Park Mall, 95th Street shops and restaurants, easy highway access, and the new Pawnee Elementary School, this home offers the perfect blend of comfort, convenience, and community. Don’t miss your chance to make this beautiful property your next home!

Directions
95th Street to Switzer. North on Switzer to Wedd Street. East on Wedd St to home on left side of street.
Subdivision
Westbrooke South
City
Overland Park
County
Johnson, KS
Property Type
Residential / Single Family Residence
Listing Updated
Nov 20, 2025 at 6:11pm
MLS Number
2587424
Property Tax
$3,393
Home Owners Association
No
Disclaimer
The information displayed on this page is confidential, proprietary, and copyrighted information of Heartland Multiple Listing Service, Inc. (“Heartland MLS”). Copyright 2025, Heartland Multiple Listing Service, Inc. Heartland MLS, Elite Realty and Agent Jo do not make any warranty or representation concerning the timeliness or accuracy of the information displayed herein. In consideration for the receipt of the information on this page, the recipient agrees to use the information solely for the private non-commercial purpose of identifying a property in which the recipient has a good faith interest in acquiring.
The data relating to real estate displayed on this website comes in part from the Heartland Multiple Listing Service database compilation. The properties displayed on this website may not be all of the properties in the Heartland MLS database compilation, or all of the properties listed with other brokers participating in the Heartland MLS IDX program. Detailed information about the properties displayed on this website includes the name of the listing company.
Information is deemed reliable but is not guaranteed.

Copyright © 2025 ELITE Realty.