1225 Northwest 325th Road, Holden, MO 64040

     
  • 4Beds
  •   
  • 2 Baths
  •  
  • 0½ Baths
  •  
  • 2,300Sq Ft
Mortgage Calculator

$494,000
 est. $2,267/mo

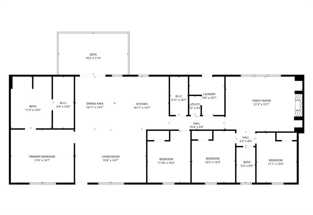
Discover peaceful rural living on this 11.15 acres in a highly desirable location - just a little over 3 miles to 50 Hwy - with a bonus of No Building restrictions and Lower Johnson county taxes!!! This BRAND NEW 2,300 sq ft Gorgeous manufactured home offers spacious one-level living with beautiful finishes and thoughtful accessible features throughout. Step inside to an open-concept layout and a stunning kitchen designed for both everyday living and entertaining. Enjoy an extra-large island, stainless steel appliances, Large Walk-in Pantry, and a striking recessed tin & beam accent ceiling that adds warmth and character. With 4 bedrooms and 2 full bathrooms, this home offers space for everyone. The primary suite is fully handicap accessible, featuring double sinks, a large walk-in shower, and an impressive walk-in closet. A second living room/bonus room provides flexibility—complete with a cozy fireplace, built-ins, and sliding barn doors for added style. The oversized laundry room includes cabinetry and a utility sink, and the home is equipped with a handicapped accessible front ramp for easy entry. You'll have endless Sunrises & Sunsets on the nice deck off of the dining area! Acreage offers room to garden, raise animals, build a shop, expand—whatever your lifestyle calls for, a Blank Slate to make it your OWN!!! Family circumstances have rerouted plans and Now's the chance for you to be in a Brand New Home and customize property to fit your wants and needs!!! :) ***This property may qualify for special eligible multiple financing options (USDA, VA, FHA, conventional) please inquire!!!

Directions
From 50 Hwy- take 131 Hwy South towards Holden, turn Left (East) onto 325th Rd, go approximately 1 mile to Property on Left (North) GPS should take you there without any problem as well.
Subdivision
Other
City
Holden
County
Johnson, MO
Property Type
Residential / Single Family Residence
Listing Updated
Apr 15, 2026 at 8:04pm
MLS Number
2585371
Property Tax
$0
Home Owners Association
No
Disclaimer
The information displayed on this page is confidential, proprietary, and copyrighted information of Heartland Multiple Listing Service, Inc. (“Heartland MLS”). Copyright 2026, Heartland Multiple Listing Service, Inc. Heartland MLS, Elite Realty and Agent Jo do not make any warranty or representation concerning the timeliness or accuracy of the information displayed herein. In consideration for the receipt of the information on this page, the recipient agrees to use the information solely for the private non-commercial purpose of identifying a property in which the recipient has a good faith interest in acquiring.
The data relating to real estate displayed on this website comes in part from the Heartland Multiple Listing Service database compilation. The properties displayed on this website may not be all of the properties in the Heartland MLS database compilation, or all of the properties listed with other brokers participating in the Heartland MLS IDX program. Detailed information about the properties displayed on this website includes the name of the listing company.
Information is deemed reliable but is not guaranteed.

Copyright © 2026 ELITE Realty.