1882 Gates Drive, Platte City, MO 64079

     
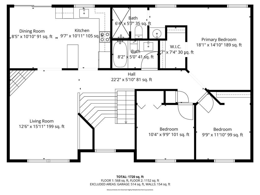
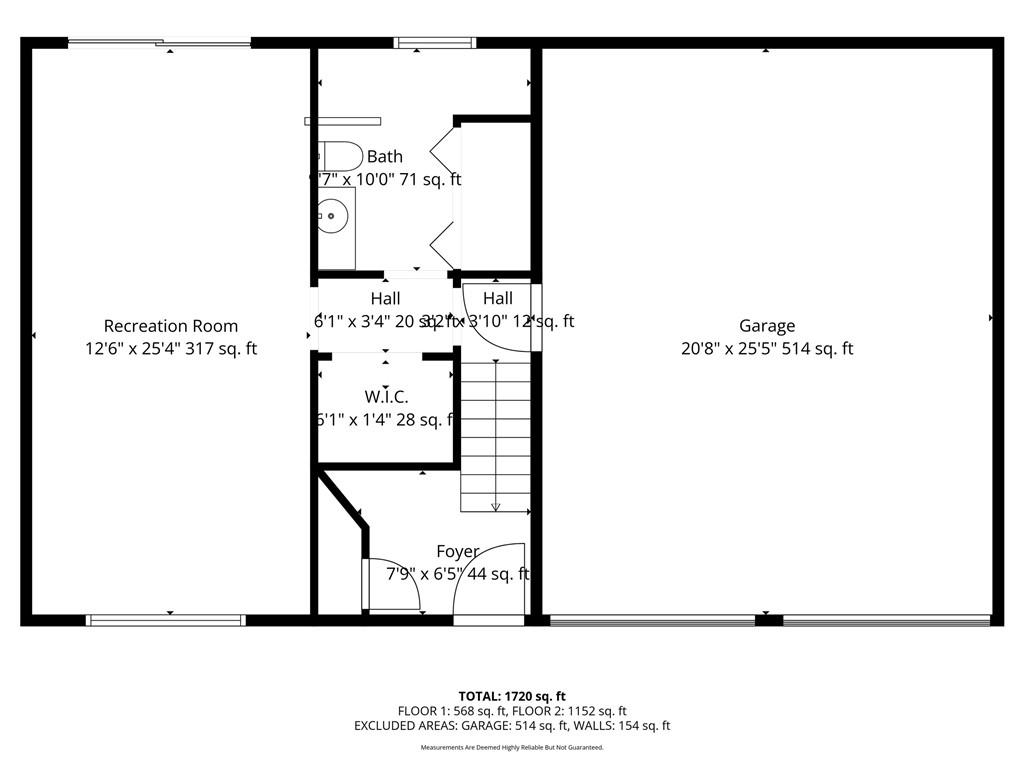
  • 3Beds
  •   
  • 2 Baths
  •  
  • 1½ Bath
  •  
  • 1,782Sq Ft
Mortgage Calculator

$325,000
 est. $1,440/mo

Newly Renovated Split-Entry Home nestled on over half an acre backing to trees! This three bedroom, two and a half bath home has been given a glow-up! New quartz countertops in kitchen, new tile in all bathrooms, new interior and exterior paint, new vinyl plank flooring, new carpet, all new door hardware, new slider doors, new light and plumbing fixtures. This home is move-in ready!

Directions
I-29 North to 92 Hwy. West to Kentucky Avenue - north on N Highway. Left of W Gates Drive. Home is on the right.
Subdivision
Tudor Flats
City
Platte City
County
Platte
Property Type
Residential / Single Family Residence
Listing Updated
Nov 15, 2025 at 3:11pm
MLS Number
2584600
Property Tax
$2,634
Home Owners Association
No
Disclaimer
The information displayed on this page is confidential, proprietary, and copyrighted information of Heartland Multiple Listing Service, Inc. (“Heartland MLS”). Copyright 2025, Heartland Multiple Listing Service, Inc. Heartland MLS, Elite Realty and Agent Jo do not make any warranty or representation concerning the timeliness or accuracy of the information displayed herein. In consideration for the receipt of the information on this page, the recipient agrees to use the information solely for the private non-commercial purpose of identifying a property in which the recipient has a good faith interest in acquiring.
The data relating to real estate displayed on this website comes in part from the Heartland Multiple Listing Service database compilation. The properties displayed on this website may not be all of the properties in the Heartland MLS database compilation, or all of the properties listed with other brokers participating in the Heartland MLS IDX program. Detailed information about the properties displayed on this website includes the name of the listing company.
Information is deemed reliable but is not guaranteed.

Copyright © 2025 ELITE Realty.