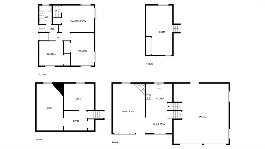
13205 Byars Road, Grandview, MO 64030

     
  • 3Beds
  •   
  • 1 Bath
  •  
  • 1½ Bath
  •  
  • 1,334Sq Ft
Mortgage Calculator

$220,000
 est. $1,055/mo

Welcome to this charming property that exudes warmth and elegance. The living room is adorned with a cozy fireplace, perfect for those chilly evenings. The home's neutral color paint scheme provides a calming ambiance and a blank canvas for your personal touches. The kitchen is a chef's delight, boasting an accent backsplash that adds a touch of sophistication. Partial flooring replacement ensures a fresh and modern feel underfoot.This property is a perfect blend of comfort and style, waiting for you to make it your own.. Included 100-Day Home Warranty with buyer activation

Directions
Head east on Main St At the traffic circle, take the 2nd exit and stay on Main St Continue onto Highgrove Rd Turn right onto Byars Rd
Subdivision
Other
City
Grandview
County
Jackson
Property Type
Residential / Single Family Residence
Listing Updated
Nov 20, 2025 at 11:11pm
MLS Number
2584349
Property Tax
$2,743
Home Owners Association
No
Disclaimer
The information displayed on this page is confidential, proprietary, and copyrighted information of Heartland Multiple Listing Service, Inc. (“Heartland MLS”). Copyright 2025, Heartland Multiple Listing Service, Inc. Heartland MLS, Elite Realty and Agent Jo do not make any warranty or representation concerning the timeliness or accuracy of the information displayed herein. In consideration for the receipt of the information on this page, the recipient agrees to use the information solely for the private non-commercial purpose of identifying a property in which the recipient has a good faith interest in acquiring.
The data relating to real estate displayed on this website comes in part from the Heartland Multiple Listing Service database compilation. The properties displayed on this website may not be all of the properties in the Heartland MLS database compilation, or all of the properties listed with other brokers participating in the Heartland MLS IDX program. Detailed information about the properties displayed on this website includes the name of the listing company.
Information is deemed reliable but is not guaranteed.

Copyright © 2025 ELITE Realty.