117 W Prospect Street, Cameron, MO 64429

     
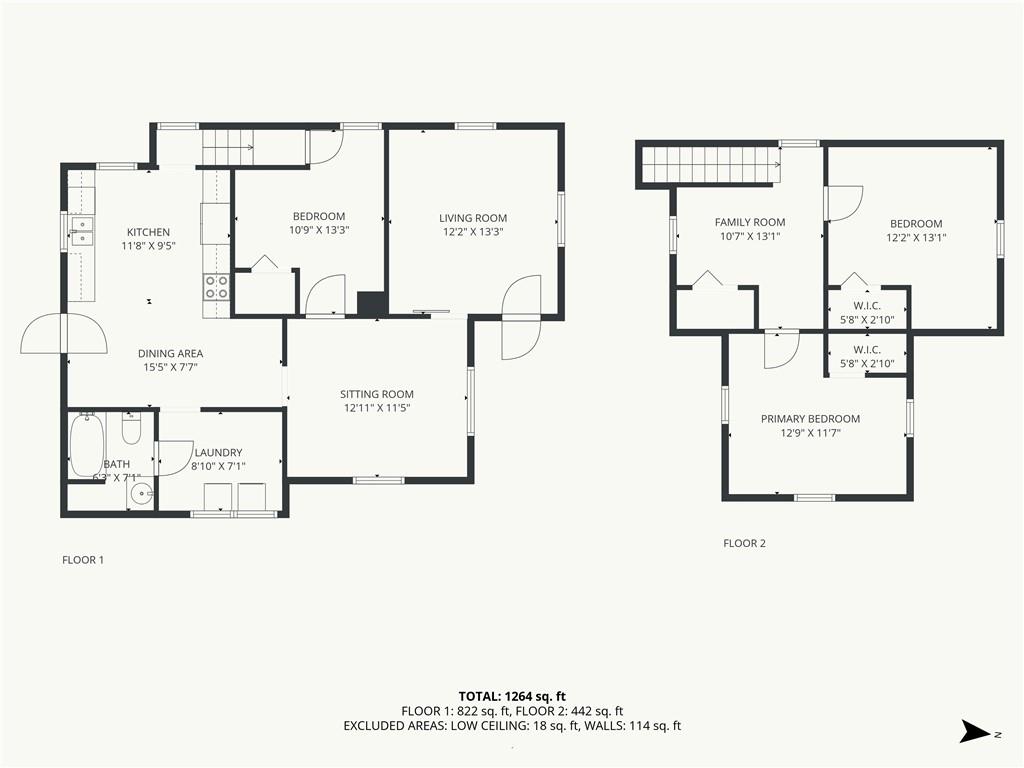
  • 3Beds
  •   
  • 1 Bath
  •  
  • 0½ Baths
  •  
  • 1,331Sq Ft
Mortgage Calculator

$165,000
 est. $674/mo

Classic charm meets modern updates in this 3-bedroom, 1-bath story-and-a-half home near schools and parks. You’ll love the renovated kitchen and bath, and the convenience of included kitchen appliances, washer, and dryer. The fenced backyard has plenty of room to build a garage or create your own outdoor retreat. An affordable home with everyday comfort, practical, and move-in ready.

Directions
From I-35 take the second exit to Cameron Evergreen/BB Highway. Go West on Evergreen/ BB Highway to Walnut/69 Highway. Go North on 69 to Propsect Street and turn West on Prospect. Continue 1 1/2 blocks to property on South side of Prospect. Parking in the back.
Subdivision
Other
City
Cameron
County
Clinton
Property Type
Residential / Single Family Residence
Listing Updated
Nov 05, 2025 at 11:11am
MLS Number
2584331
Property Tax
$646
Home Owners Association
No
Disclaimer
The information displayed on this page is confidential, proprietary, and copyrighted information of Heartland Multiple Listing Service, Inc. (“Heartland MLS”). Copyright 2025, Heartland Multiple Listing Service, Inc. Heartland MLS, Elite Realty and Agent Jo do not make any warranty or representation concerning the timeliness or accuracy of the information displayed herein. In consideration for the receipt of the information on this page, the recipient agrees to use the information solely for the private non-commercial purpose of identifying a property in which the recipient has a good faith interest in acquiring.
The data relating to real estate displayed on this website comes in part from the Heartland Multiple Listing Service database compilation. The properties displayed on this website may not be all of the properties in the Heartland MLS database compilation, or all of the properties listed with other brokers participating in the Heartland MLS IDX program. Detailed information about the properties displayed on this website includes the name of the listing company.
Information is deemed reliable but is not guaranteed.

Copyright © 2025 ELITE Realty.