206 N Pine Street, Gardner, KS 66030

     
  • 4Beds
  •   
  • 2 Baths
  •  
  • 1½ Bath
  •  
  • 2,456Sq Ft
Mortgage Calculator

$350,000
 est. $1,742/mo

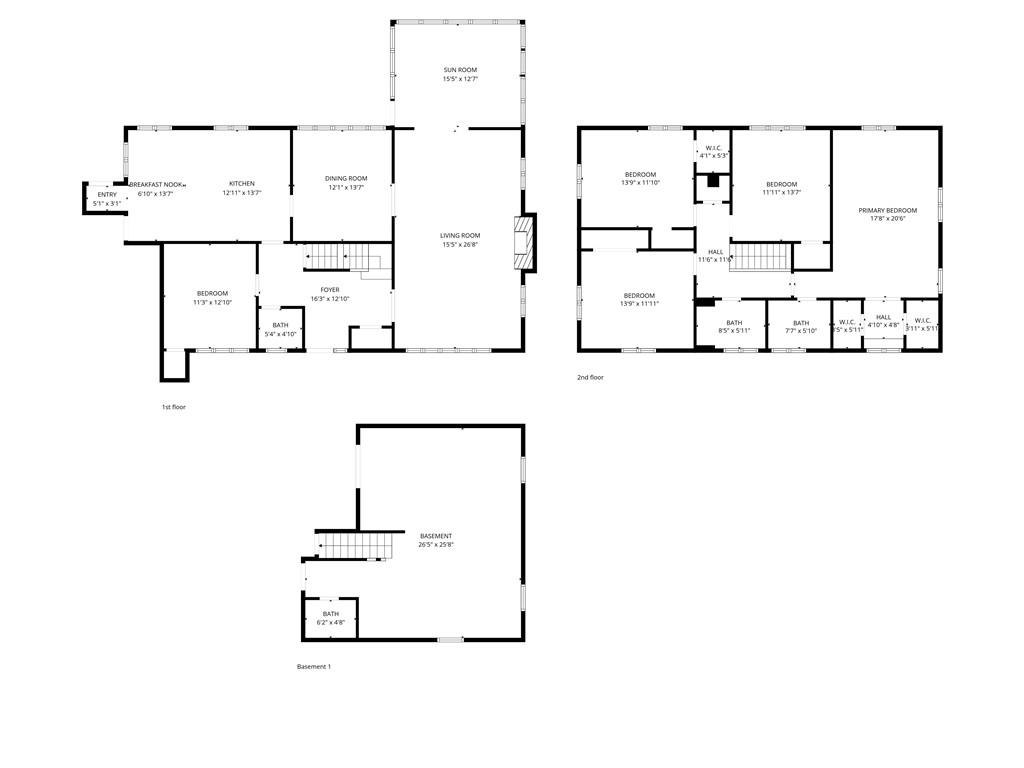
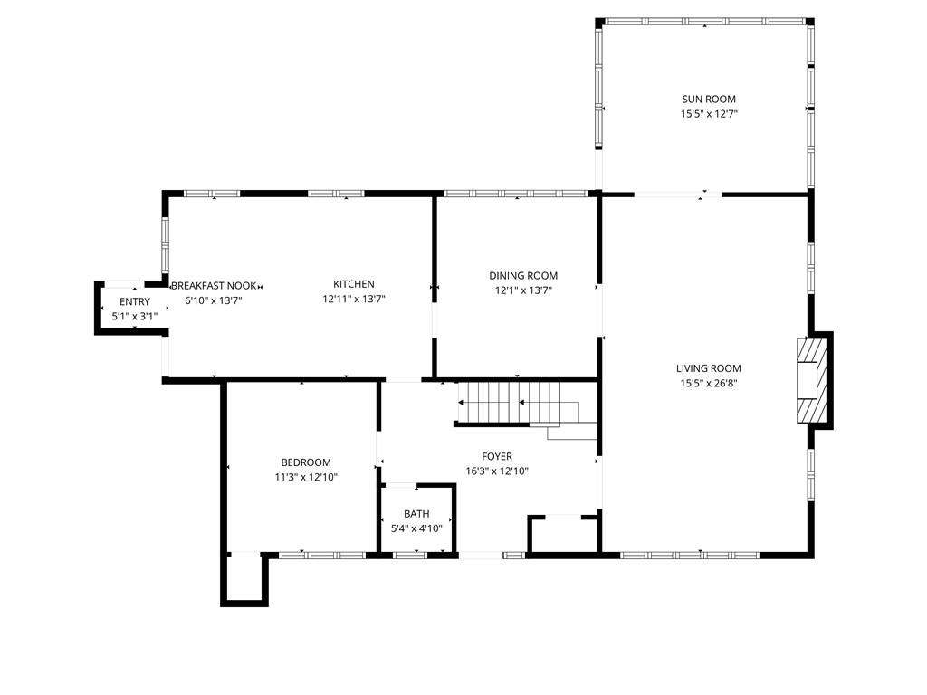
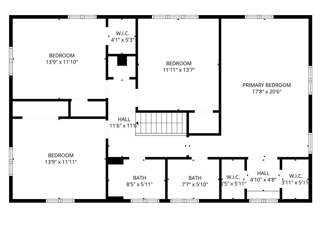
RARE OPPORTUNITY FOR ACREAGE & INGROUND POOL in the heart of Gardner! Country living right in the city. This charming 4 bedroom home sits on .51 ACRES with an additional 1.37-acre adjoining parcel also available. You can also buy the house on a total of 1.87 acres for only $400,000 (MLS# 2588186), or just buy the 1.36 acre piece of land for $75,000 (MLS# 2588183). Inside, you’ll find the character you want with the space you need: a huge primary bedroom with two walk-in closets, a large family room that opens to the sunroom, and a handy side-entry garage. Summer is covered with your own inground pool, while the extra land invites gardens and room to roam. If you’ve been waiting for space, privacy, and a classic home with real personality, this is it.

Directions
I35 to 175th St, West to Pine, North home.
Subdivision
Gault Addition
City
Gardner
County
Johnson, KS
Property Type
Residential / Single Family Residence
Listing Updated
Nov 20, 2025 at 6:11pm
MLS Number
2584090
Property Tax
$5,127
Home Owners Association
No
Disclaimer
The information displayed on this page is confidential, proprietary, and copyrighted information of Heartland Multiple Listing Service, Inc. (“Heartland MLS”). Copyright 2025, Heartland Multiple Listing Service, Inc. Heartland MLS, Elite Realty and Agent Jo do not make any warranty or representation concerning the timeliness or accuracy of the information displayed herein. In consideration for the receipt of the information on this page, the recipient agrees to use the information solely for the private non-commercial purpose of identifying a property in which the recipient has a good faith interest in acquiring.
The data relating to real estate displayed on this website comes in part from the Heartland Multiple Listing Service database compilation. The properties displayed on this website may not be all of the properties in the Heartland MLS database compilation, or all of the properties listed with other brokers participating in the Heartland MLS IDX program. Detailed information about the properties displayed on this website includes the name of the listing company.
Information is deemed reliable but is not guaranteed.

Copyright © 2025 ELITE Realty.