1227 Huntington Road, Kansas City, MO 64113

     
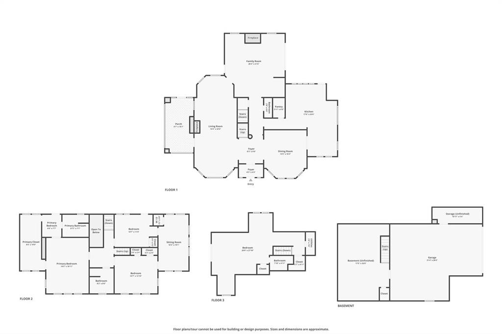
  • 4Beds
  •   
  • 3 Baths
  •  
  • 1½ Bath
  •  
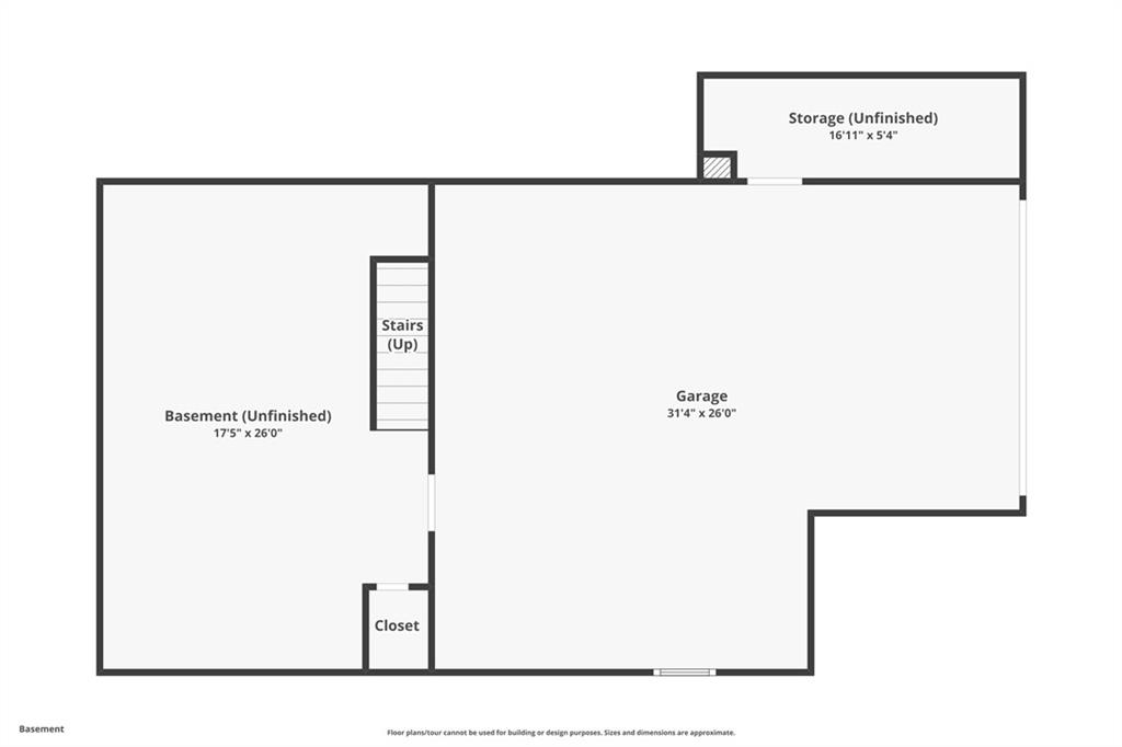
  • 3,789Sq Ft
Mortgage Calculator

$1,300,000
 est. $5,893/mo

This elegant and spacious home in the highly desired Suncrest neighborhood along the Ward Parkway Corridor is sure to impress. The main floor features spacious family room with cozy gas fireplace & wet bar, plantation shutters, formal living room with wood burn fireplace, refined crown molding, and a sunlit dining room that sets the tone for sophisticated living. The updated kitchen is a true showpiece, offering marble countertops, a Sub-Zero refrigerator, Dacor gas cooktop and stove, an elegant butler’s pantry, and a walk-in pantry centered around a well-situated island. Enjoy both a formal living room with a wood-burning fireplace and a large family room with a gas fireplace, perfect for entertaining or quiet evenings in. The main level also includes a screened-in patio that opens to a spacious deck, plus a brick patio with a Jacuzzi hot tub, surrounded by a beautifully landscaped yard. Upstairs, the primary suite offers a luxurious retreat with custom cabinetry in the walk-through closet, a private coffee bar, and access to a second-floor patio overlooking the backyard. Two additional bedrooms share a cozy TV or sitting room, while the third floor provides a versatile space currently used as an office, complete with a full bath and ample storage—ideal for a guest suite, studio, or additional bedroom. This remarkable home blends classic charm with thoughtful updates and generous indoor and outdoor living spaces.

Directions
Ward Parkway to Huntington Drive, west to home.
Subdivision
Suncrest
City
Kansas City
County
Jackson
Property Type
Residential / Single Family Residence
Listing Updated
Nov 09, 2025 at 3:11pm
MLS Number
2584017
Property Tax
$12,146
Home Owners Association
Yes - Suncrest
Disclaimer
The information displayed on this page is confidential, proprietary, and copyrighted information of Heartland Multiple Listing Service, Inc. (“Heartland MLS”). Copyright 2025, Heartland Multiple Listing Service, Inc. Heartland MLS, Elite Realty and Agent Jo do not make any warranty or representation concerning the timeliness or accuracy of the information displayed herein. In consideration for the receipt of the information on this page, the recipient agrees to use the information solely for the private non-commercial purpose of identifying a property in which the recipient has a good faith interest in acquiring.
The data relating to real estate displayed on this website comes in part from the Heartland Multiple Listing Service database compilation. The properties displayed on this website may not be all of the properties in the Heartland MLS database compilation, or all of the properties listed with other brokers participating in the Heartland MLS IDX program. Detailed information about the properties displayed on this website includes the name of the listing company.
Information is deemed reliable but is not guaranteed.

Copyright © 2025 ELITE Realty.