4942 N Flora Avenue, Kansas City, MO 64118

     
  • 3Beds
  •   
  • 2 Baths
  •  
  • 1½ Bath
  •  
  • 1,765Sq Ft
Mortgage Calculator

$239,000
 est. $1,170/mo

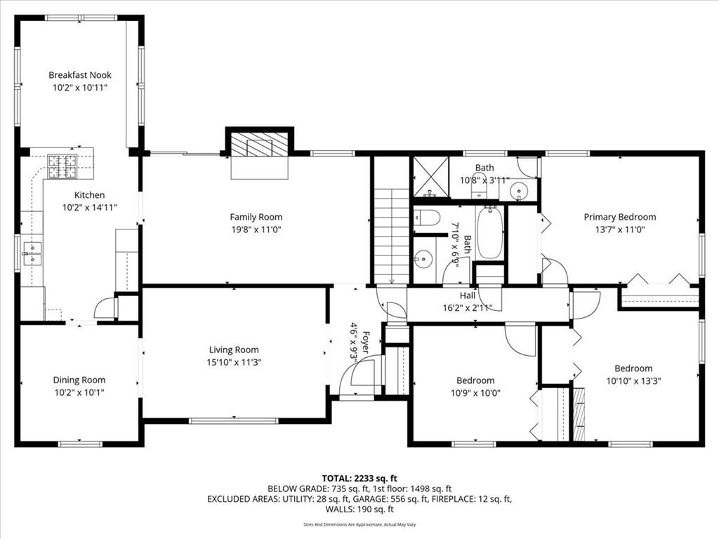
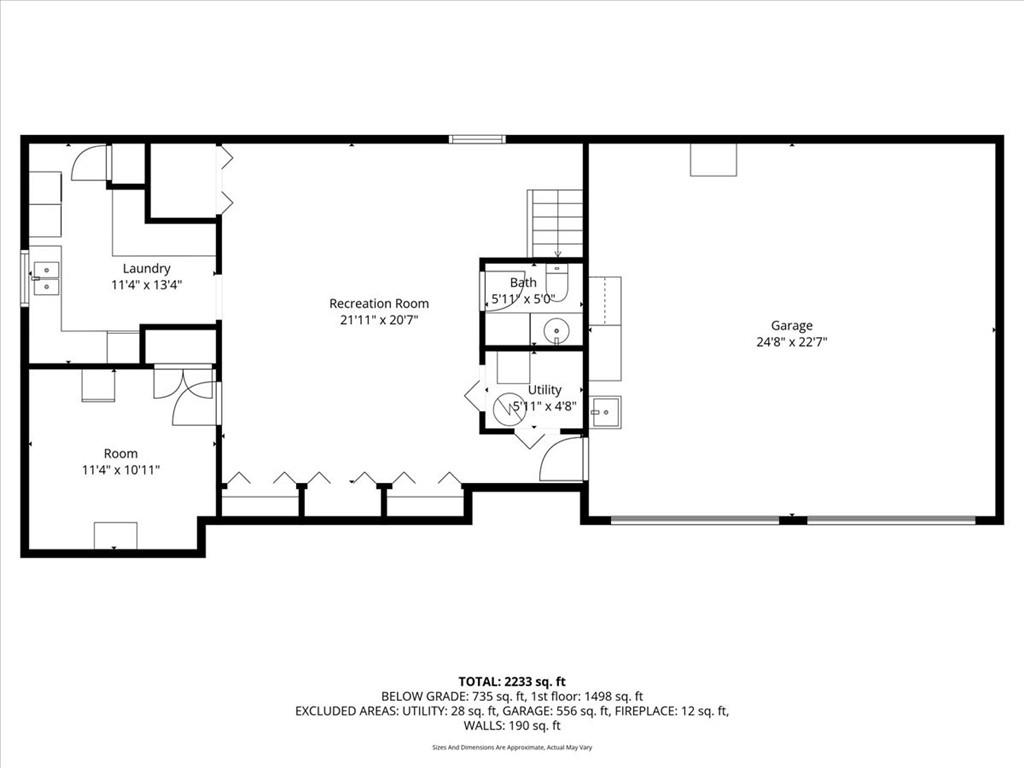
Cates Auction is pleased to present for auction 4942 N Flora Avenue in Kansas City, MO. This raised ranch offers 3 bedrooms, 2.5 baths, and 1,765± finished SF on a large 18,295± SF lot in the NKC School District. Features include beautiful wood cabinetry, original hardwood floors, ample natural light, a finished basement, and a 2-car attached garage. Recent updates: new AC (2024), new furnace (2024), and new electrical panel (2025). Fully fenced yard with a covered patio. A great fixer-upper with strong potential and classic MCM character. Bidding ends on December 19th at 1 pm.

Directions
From Downtown KC: Take the I-29 N until you reach exit 1A for Davidson Rd., take the first right, continue onto N Highland Ave, take a left at NE 48th Terrace, and continue on until you see the house and sign on your left-hand side.
Subdivision
Hiland Park
City
Kansas City
County
Clay
Property Type
Residential / Single Family Residence
Listing Updated
Nov 24, 2025 at 3:11pm
MLS Number
2583000
Property Tax
$3,268
Home Owners Association
No
Disclaimer
The information displayed on this page is confidential, proprietary, and copyrighted information of Heartland Multiple Listing Service, Inc. (“Heartland MLS”). Copyright 2025, Heartland Multiple Listing Service, Inc. Heartland MLS, Elite Realty and Agent Jo do not make any warranty or representation concerning the timeliness or accuracy of the information displayed herein. In consideration for the receipt of the information on this page, the recipient agrees to use the information solely for the private non-commercial purpose of identifying a property in which the recipient has a good faith interest in acquiring.
The data relating to real estate displayed on this website comes in part from the Heartland Multiple Listing Service database compilation. The properties displayed on this website may not be all of the properties in the Heartland MLS database compilation, or all of the properties listed with other brokers participating in the Heartland MLS IDX program. Detailed information about the properties displayed on this website includes the name of the listing company.
Information is deemed reliable but is not guaranteed.

Copyright © 2025 ELITE Realty.