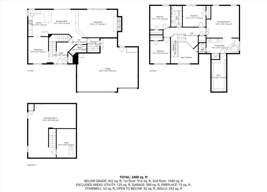
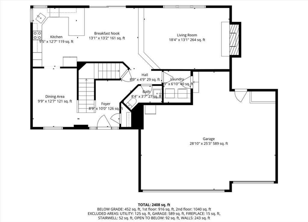
16345 S Warwick Street, Olathe, KS 66062

     
  • 4Beds
  •   
  • 2 Baths
  •  
  • 1½ Bath
  •  
  • 3,835Sq Ft
Mortgage Calculator

$475,000
 est. $2,176/mo

Charming two story on largest cul-de-sac lot in Sout Hampton! Updated kitchen, New Fireplace, New Flooring in finished basement,New Roof, 3 gar garage with a heater door to back yard and storage shed. LVP flooring. Partially finished basement. Fenced in yard. Seller will consider a paint allowance with an acceptable offer.

Directions
Turn left onto W 159th St, At the traffic circle, take 2nd exit and stay on w 159th St , Turn Left onto South Warwick.
Subdivision
South Hampton
City
Olathe
County
Johnson, KS
Property Type
Residential / Single Family Residence
Listing Updated
Jan 11, 2026 at 2:01pm
MLS Number
2582714
Property Tax
$4,714
Home Owners Association
Yes - HOA
Disclaimer
The information displayed on this page is confidential, proprietary, and copyrighted information of Heartland Multiple Listing Service, Inc. (“Heartland MLS”). Copyright 2026, Heartland Multiple Listing Service, Inc. Heartland MLS, Elite Realty and Agent Jo do not make any warranty or representation concerning the timeliness or accuracy of the information displayed herein. In consideration for the receipt of the information on this page, the recipient agrees to use the information solely for the private non-commercial purpose of identifying a property in which the recipient has a good faith interest in acquiring.
The data relating to real estate displayed on this website comes in part from the Heartland Multiple Listing Service database compilation. The properties displayed on this website may not be all of the properties in the Heartland MLS database compilation, or all of the properties listed with other brokers participating in the Heartland MLS IDX program. Detailed information about the properties displayed on this website includes the name of the listing company.
Information is deemed reliable but is not guaranteed.

Copyright © 2026 ELITE Realty.