23710 E 11th Street, Independence, MO 64056

     
  • 3Beds
  •   
  • 2 Baths
  •  
  • 1½ Bath
  •  
  • 1,680Sq Ft
Mortgage Calculator

$385,000
 est. $1,446/mo

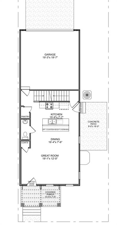
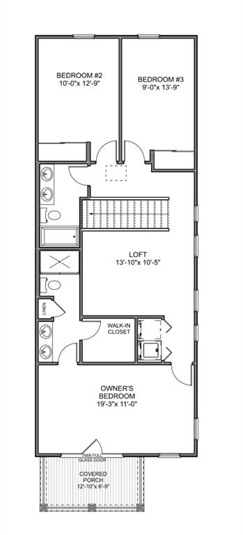
Welcome to New Town at Harmony, where timeless architecture meets modern living in this beautiful two-story, three-bedroom home located within the highly acclaimed Blue Springs School District. Step inside to find an open-concept main level that seamlessly blends the kitchen, dining, and great room, creating a bright and connected living space perfect for entertaining or family life. The kitchen island serves as the home’s central hub, while the dedicated pantry, coat closet, and powder bath keep daily life organized and efficient. Basement is not finished but could be if needed! Upstairs, retreat to a generous primary suite complete with a walk-in closet and private bath. Two additional bedrooms share a spacious full bath, and a versatile loft adds flexibility — perfect for a home office, playroom, or media space. A rear-entry 2 car garage, front porch charm, and low-maintenance yard make this home as functional as it is stylish. Surrounded by parks, amphitheater, sand volleyball courts with food truck, fitness center, and more this home captures the essence of modern neighborhood living in New Town at Harmony.

Directions
from 70 Highway take Little Blue Parkway and head North to Truman Rd. Take Truman Rd East to Harmony Ave. Take a right on 11th Street South and the home is on your left hand side.
Subdivision
New Town at Harmony
City
Independence
County
Jackson
Property Type
Residential / Single Family Residence
Listing Updated
Nov 21, 2025 at 5:11pm
MLS Number
2582001
Property Tax
$1
Home Owners Association
Yes - NTAH
Disclaimer
The information displayed on this page is confidential, proprietary, and copyrighted information of Heartland Multiple Listing Service, Inc. (“Heartland MLS”). Copyright 2025, Heartland Multiple Listing Service, Inc. Heartland MLS, Elite Realty and Agent Jo do not make any warranty or representation concerning the timeliness or accuracy of the information displayed herein. In consideration for the receipt of the information on this page, the recipient agrees to use the information solely for the private non-commercial purpose of identifying a property in which the recipient has a good faith interest in acquiring.
The data relating to real estate displayed on this website comes in part from the Heartland Multiple Listing Service database compilation. The properties displayed on this website may not be all of the properties in the Heartland MLS database compilation, or all of the properties listed with other brokers participating in the Heartland MLS IDX program. Detailed information about the properties displayed on this website includes the name of the listing company.
Information is deemed reliable but is not guaranteed.

Copyright © 2025 ELITE Realty.