808 E 31st Terrace, Kansas City, MO 64109

     
  • 5Beds
  •   
  • 2 Baths
  •  
  • 1½ Bath
  •  
  • 2,071Sq Ft
Mortgage Calculator

$350,000
 est. $1,614/mo

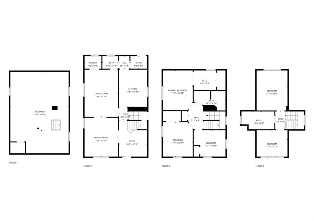
Love at first porch swing! Perched gracefully on a street once known as Glen Airy Place, one of North Hyde Park’s most private and picturesque pockets, this 1905 treasure is a love letter to Kansas City craftsmanship. Raised just above the street with lush landscaping, the home feels both grand and intimate, offering that rare balance of presence and privacy. Once featured on the 1997 Hyde Park Historic Homes Tour, this jewel remains every bit as timeless today, rich in detail, warmth, and character. From the moment you step onto the wide, covered front porch with its classic swing and leafy serenity, you can feel the care that’s been poured into this home. Inside, sunlight spills across original hardwood floors that stretch through all three levels. Tall ceilings, leaded glass, and intricate crown molding and woodwork tell the story of another era, while thoughtful updates make everyday living effortless. The main level flows gracefully from living to dining to kitchen, made for entertaining and connection. A wet bar off the living room adds a touch of fun, and the checkerboard floors and crisp white cabinetry in the kitchen bring vintage charm to life. Upstairs, spacious bedrooms and a generous primary suite with its own sitting area offer comfort and character in every corner. The third floor is a dream hideaway, complete with two additional bedrooms and a full bath newly built from the studs up -- a private space for guests, work, or creativity. Out back, a fenced yard with mature trees and a brick patio creates a rare city oasis -- perfect for morning coffee or evenings around the fire pit. A dry, functional basement rounds all out with plenty of storage and workspace. The home feels private yet connected, just steps from the new streetcar extension, Martini Corner, and neighborhood favorites like Noka and Cliff's. This is one of those rare Hyde Park homes that feels like a storybook come to life... and all that’s missing is your next chapter.

Directions
From 71 North, take exit towards Linwood/31st Street, and merge onto Euclid Avenue. Turn left onto E 31st Street. Turn left onto Charlotte Street. Turn left onto E 31st Terrace. Home will be on the left.
Subdivision
Hyde Park North
City
Kansas City
County
Jackson
Property Type
Residential / Single Family Residence
Listing Updated
Oct 10, 2025 at 8:10am
MLS Number
2579790
Property Tax
$3,591
Home Owners Association
No
Disclaimer
The information displayed on this page is confidential, proprietary, and copyrighted information of Heartland Multiple Listing Service, Inc. (“Heartland MLS”). Copyright 2025, Heartland Multiple Listing Service, Inc. Heartland MLS, Elite Realty and Agent Jo do not make any warranty or representation concerning the timeliness or accuracy of the information displayed herein. In consideration for the receipt of the information on this page, the recipient agrees to use the information solely for the private non-commercial purpose of identifying a property in which the recipient has a good faith interest in acquiring.
The data relating to real estate displayed on this website comes in part from the Heartland Multiple Listing Service database compilation. The properties displayed on this website may not be all of the properties in the Heartland MLS database compilation, or all of the properties listed with other brokers participating in the Heartland MLS IDX program. Detailed information about the properties displayed on this website includes the name of the listing company.
Information is deemed reliable but is not guaranteed.

Copyright © 2025 ELITE Realty.