712 W 91st Street, Kansas City, MO 64114

     
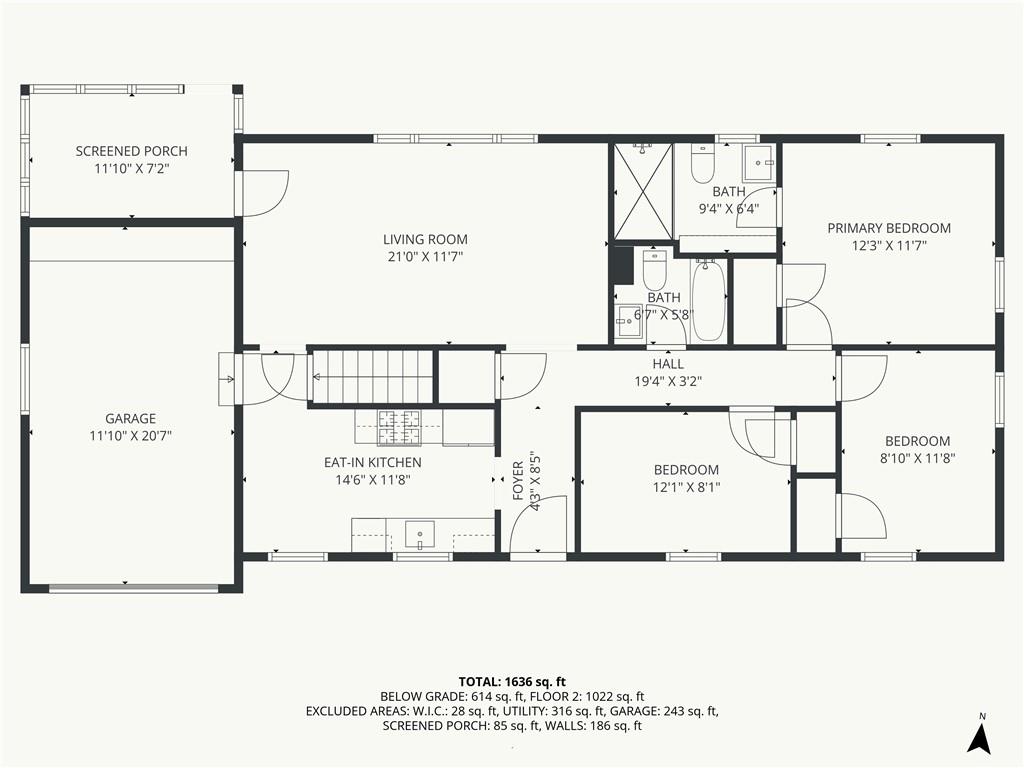
  • 4Beds
  •   
  • 3 Baths
  •  
  • 0½ Baths
  •  
  • 1,932Sq Ft
Mortgage Calculator

$339,000
 est. $1,490/mo

Welcome to 712 W 91st St — a truly stunning 4-bedroom, 3-bathroom home with thoughtful design and exceptional craftsmanship throughout. This beautifully renovated property features brand-new everything, including a fully finished basement and fenced-in yard. The main level offers convenient laundry and a luxurious primary suite with custom finishes. The layout maximizes every inch of space, with a formal living/dining area upstairs, a charming breakfast nook, and a spacious bonus living area with storage downstairs. Enjoy quiet mornings or relaxed evenings on the screened-in porch. From top to bottom, the attention to detail in this home is extraordinary — truly a must-see!

Directions
From Ward Parkway & Wornall - Go North on Wornall, turn left on 91st St, then another left on 91st to the home at 712 W 91st St
Subdivision
Western Hills
City
Kansas City
County
Jackson
Property Type
Residential / Single Family Residence
Listing Updated
Nov 11, 2025 at 8:11pm
MLS Number
2579787
Property Tax
$2,608
Home Owners Association
Yes - Western Hills HOA
Disclaimer
The information displayed on this page is confidential, proprietary, and copyrighted information of Heartland Multiple Listing Service, Inc. (“Heartland MLS”). Copyright 2025, Heartland Multiple Listing Service, Inc. Heartland MLS, Elite Realty and Agent Jo do not make any warranty or representation concerning the timeliness or accuracy of the information displayed herein. In consideration for the receipt of the information on this page, the recipient agrees to use the information solely for the private non-commercial purpose of identifying a property in which the recipient has a good faith interest in acquiring.
The data relating to real estate displayed on this website comes in part from the Heartland Multiple Listing Service database compilation. The properties displayed on this website may not be all of the properties in the Heartland MLS database compilation, or all of the properties listed with other brokers participating in the Heartland MLS IDX program. Detailed information about the properties displayed on this website includes the name of the listing company.
Information is deemed reliable but is not guaranteed.

Copyright © 2025 ELITE Realty.