2701 Mercer Lane, Platte City, MO 64079

     
  • 3Beds
  •   
  • 2 Baths
  •  
  • 0½ Baths
  •  
  • 1,635Sq Ft
Mortgage Calculator

$414,990
 est. $2,100/mo

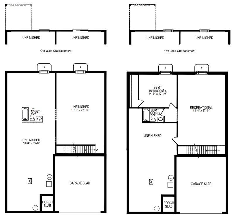
Expansive Ranch Living, Contemporary Style, Timeless Appeal in the Newcastle at Windmill Creek Ask Listing Agent, Stacy Steffen, about Builder Incentives and Closing Cost Opportunities 816-394-1075 These won't last long and have the Best Warranties in the business!! Peace of mind + New Construction Call Today!! The Newcastle by D.R. Horton is a thoughtfully designed ranch plan that combines open-concept living with all the comforts of main-level convenience. With its spacious layout and optional finished basement, this home adapts beautifully to a variety of lifestyles—from entertaining to multigenerational living. The kitchen serves as the heart of the home, featuring quartz countertops, painted maple cabinetry, and Whirlpool® stainless steel appliances. A seamless flow into the dining and living areas creates an inviting space filled with natural light. The primary suite offers a private retreat with dual vanity, a large shower with glass enclosure, and a generous walk-in closet. Secondary bedrooms are thoughtfully positioned for privacy, while a main-level laundry room adds everyday ease. Smart home technology, luxury vinyl plank flooring in high-traffic areas, and energy-efficient construction round out the details. And with D.R. Horton’s 1-Year Workmanship, 2-Year Mechanical, and 10-Year Structural warranties, the Newcastle offers lasting value and peace of mind. *Ask about Builder Incentives **Photos may depict a similar plan with comparable finishes. Please verify details with the onsite sales agent.

Directions
I-29 N to 92 Hwy E to Windmill Drive go right to 140th Street go left to Mercer Lane go left home is on the right
Subdivision
Windmill Creek
City
Platte City
County
Platte
Property Type
Residential / Single Family Residence
Listing Updated
Nov 19, 2025 at 10:11am
MLS Number
2578649
Property Tax
$6,500
Home Owners Association
Yes - Windmill Creek Homes Association, Inc.
Disclaimer
The information displayed on this page is confidential, proprietary, and copyrighted information of Heartland Multiple Listing Service, Inc. (“Heartland MLS”). Copyright 2025, Heartland Multiple Listing Service, Inc. Heartland MLS, Elite Realty and Agent Jo do not make any warranty or representation concerning the timeliness or accuracy of the information displayed herein. In consideration for the receipt of the information on this page, the recipient agrees to use the information solely for the private non-commercial purpose of identifying a property in which the recipient has a good faith interest in acquiring.
The data relating to real estate displayed on this website comes in part from the Heartland Multiple Listing Service database compilation. The properties displayed on this website may not be all of the properties in the Heartland MLS database compilation, or all of the properties listed with other brokers participating in the Heartland MLS IDX program. Detailed information about the properties displayed on this website includes the name of the listing company.
Information is deemed reliable but is not guaranteed.

Copyright © 2025 ELITE Realty.