7906 MO-9 Highway, Parkville, MO 64152

     
  • 5Beds
  •   
  • 3 Baths
  •  
  • 0½ Baths
  •  
  • 2,400Sq Ft
Mortgage Calculator

$340,000
 est. $1,454/mo

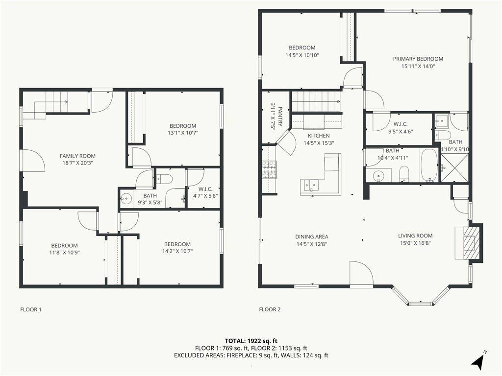
Welcome to a beautifully updated raised ranch that combines modern comfort with classic charm. Step onto the inviting front deck, perfect for morning coffee or evening sunsets, before heading inside to find an open and airy main level. The living room welcomes you with natural light and a cozy fireplace, flowing seamlessly into the dining area and updated kitchen, featuring generous cabinet space and a stylish backsplash. The primary suite offers a private retreat with its own bath and walk-in closet, while an additional bedroom on the main floor provides flexibility for guests, a home office, or hobbies. The finished walkout basement expands your living space with a family room, three more bedrooms, and a full bath—ideal for a growing household or hosting overnight guests. Outside, the half-acre lot gives you room to garden, play, and entertain, complete with multiple garage spaces and a shed for storage. Located in the award-winning Park Hill School District, this home blends convenience, space, and style—all just minutes from Parkville’s shopping, dining, and parks.

Directions
Follow I-29 N to NW 72nd St in Pawnee Township. Take exit 6 from I-29 N. Drive to MO-9 S in Sioux Township.
Subdivision
Platte Hills
City
Parkville
County
Platte
Property Type
Residential / Single Family Residence
Listing Updated
Oct 03, 2025 at 1:10pm
MLS Number
2578591
Property Tax
$2,130
Home Owners Association
No
Disclaimer
The information displayed on this page is confidential, proprietary, and copyrighted information of Heartland Multiple Listing Service, Inc. (“Heartland MLS”). Copyright 2025, Heartland Multiple Listing Service, Inc. Heartland MLS, Elite Realty and Agent Jo do not make any warranty or representation concerning the timeliness or accuracy of the information displayed herein. In consideration for the receipt of the information on this page, the recipient agrees to use the information solely for the private non-commercial purpose of identifying a property in which the recipient has a good faith interest in acquiring.
The data relating to real estate displayed on this website comes in part from the Heartland Multiple Listing Service database compilation. The properties displayed on this website may not be all of the properties in the Heartland MLS database compilation, or all of the properties listed with other brokers participating in the Heartland MLS IDX program. Detailed information about the properties displayed on this website includes the name of the listing company.
Information is deemed reliable but is not guaranteed.

Copyright © 2025 ELITE Realty.