6105 E 152nd Street, Grandview, MO 64030

     
  • 3Beds
  •   
  • 1 Bath
  •  
  • 0½ Baths
  •  
  • 962Sq Ft
Mortgage Calculator

$179,000
 est. $848/mo

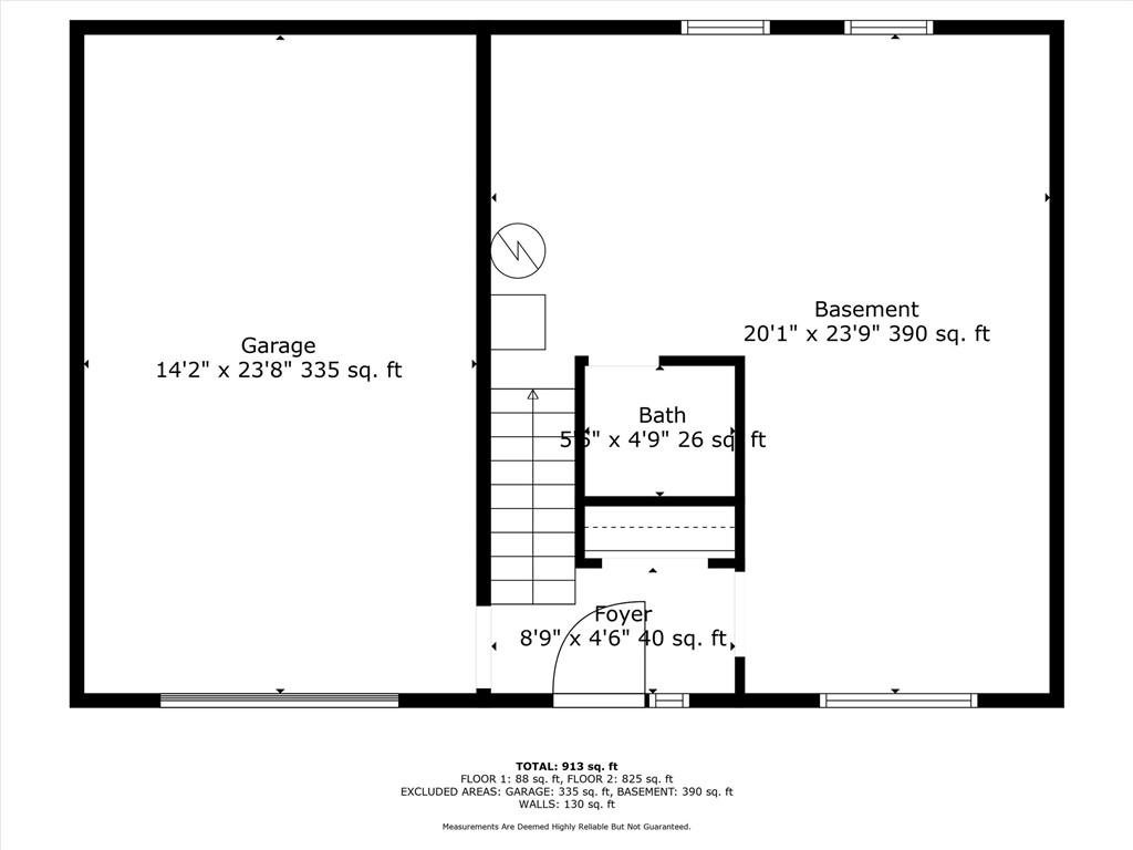
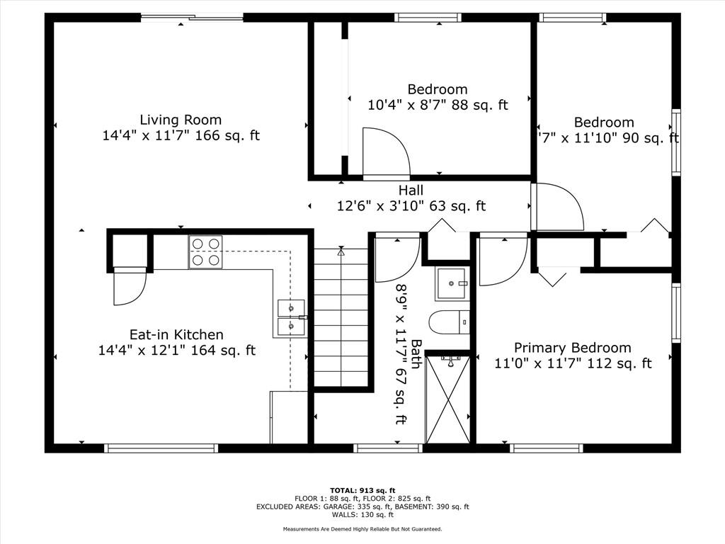
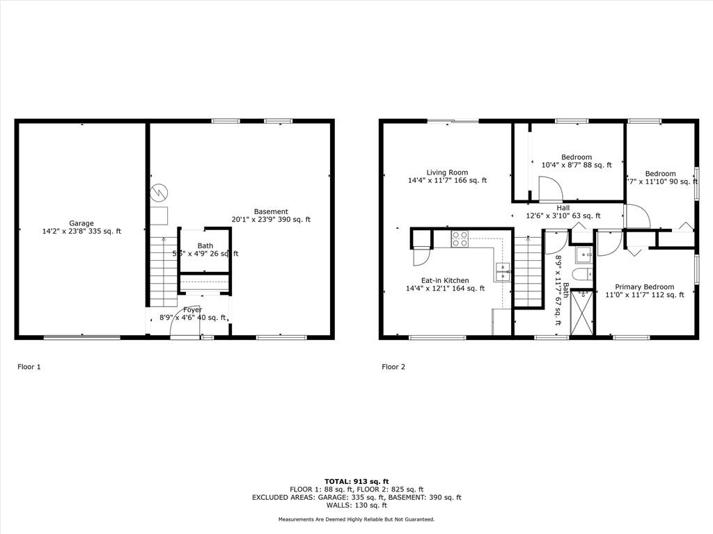
This Grandview raised ranch is packed with potential and primed for its next chapter. Whether you're an investor looking for your next project or a future homeowner ready to roll up your sleeves and build equity, this one’s worth a closer look. Upstairs features three generous bedrooms, a full bath, and a living space with original hardwoods and natural light throughout. The kitchen is clean and functional, with plenty of space to make it your own over time. The lower level is a blank canvas and ready for you to create your own rec room, laundry area, and a half bath Outside, you’ll find a flat, fenced-in yard and a manicured exterior that already brings solid curb appeal. An attached 1-car garage rounds out the package. Whether you're looking to renovate and flip, update and rent, or build some sweat equity—this one checks all the boxes for location, layout, and potential.

Directions
Head south on I-49 from Grandview and take Exit 176 for 155th Street toward Belton. Stay slightly left on the ramp to merge onto E 155th Street. Turn left onto 155th/Arnold Ave, and at the traffic circle, take the third exit to continue on County Line Road. Turn left onto E 153rd Terrace, then make a quick left onto Barat Avenue. Follow that for a short distance, then turn right onto E 152nd Street—your destination will be on the right at 6105 E 152nd St, Grandview, MO 64030.
Subdivision
Belvidere Heights Add
City
Grandview
County
Jackson
Property Type
Residential / Single Family Residence
Listing Updated
Sep 25, 2025 at 1:09am
MLS Number
2577124
Property Tax
$2,106
Home Owners Association
No
Disclaimer
The information displayed on this page is confidential, proprietary, and copyrighted information of Heartland Multiple Listing Service, Inc. (“Heartland MLS”). Copyright 2025, Heartland Multiple Listing Service, Inc. Heartland MLS, Elite Realty and Agent Jo do not make any warranty or representation concerning the timeliness or accuracy of the information displayed herein. In consideration for the receipt of the information on this page, the recipient agrees to use the information solely for the private non-commercial purpose of identifying a property in which the recipient has a good faith interest in acquiring.
The data relating to real estate displayed on this website comes in part from the Heartland Multiple Listing Service database compilation. The properties displayed on this website may not be all of the properties in the Heartland MLS database compilation, or all of the properties listed with other brokers participating in the Heartland MLS IDX program. Detailed information about the properties displayed on this website includes the name of the listing company.
Information is deemed reliable but is not guaranteed.

Copyright © 2025 ELITE Realty.