19490 Bluejay Trail Circle, Lawson, MO 64062

     
  • 4Beds
  •   
  • 2 Baths
  •  
  • 0½ Baths
  •  
  • 1,850Sq Ft
Mortgage Calculator

$290,000
 est. $1,241/mo

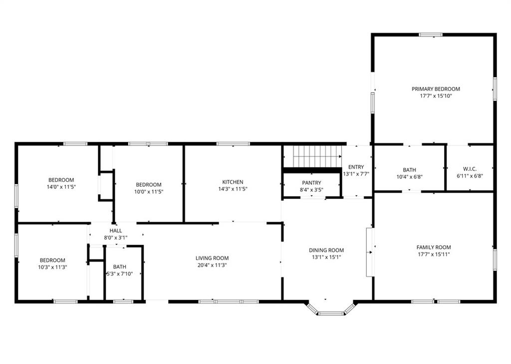
PRICE IMPROVEMENT!!! This charming ranch-style home with maintenance-free exterior offers a spacious 4-bedroom, 2-bath layout on over 2 acres, and nearly 2,000 square feet of living space. It features plenty of driveway parking and room to add a carport or detached garage. The south end includes three hardwood-floor bedrooms, while the freshly painted interior and professionally cleaned carpets add a fresh touch. There are two spacious living areas and a large formal dining room, perfect for gatherings and holidays. An addition adds a second living space and a primary bedroom with an en-suite bathroom and private patio access for added comfort. The cozy kitchen boasts an island for extra counter space and storage, along with a walk-in pantry off the dining room. The utility room in the unfinished basement provides extra storage or expansion possibilities. Outside, the fenced yard includes an above-ground pool with new decking, great for summer fun, and a large barn for outdoor equipment and tools. The house also features two water heaters and AC units for convenience. Recent updates include a new water softener (2023), a backyard oasis with a pool, deck, and patio installed in 2022, and a paved driveway Spring of 2025. The metal roof, gutters with guards, and siding were replaced within last 10years. Foundation work in 2025 comes with a 10-year warranty. Enjoy the best of country living just minutes away from the city!

Directions
From I-35 N take exit 33 for Missouri PP toward Lawson/Holt. Turn right onto S E PP Hwy. Turn right onto US-69 S. Turn left onto NE 192nd St. Take a left onto w 6th St/Hwy D. Turn left onto State Hwy C. Turn right onto Hwy D. Turn left onto Bluejay Trail Cir
Subdivision
Blue Jay Trail
City
Lawson
County
Ray
Property Type
Residential / Single Family Residence
Listing Updated
Nov 29, 2025 at 6:11pm
MLS Number
2576541
Property Tax
$1,821
Home Owners Association
No
Disclaimer
The information displayed on this page is confidential, proprietary, and copyrighted information of Heartland Multiple Listing Service, Inc. (“Heartland MLS”). Copyright 2025, Heartland Multiple Listing Service, Inc. Heartland MLS, Elite Realty and Agent Jo do not make any warranty or representation concerning the timeliness or accuracy of the information displayed herein. In consideration for the receipt of the information on this page, the recipient agrees to use the information solely for the private non-commercial purpose of identifying a property in which the recipient has a good faith interest in acquiring.
The data relating to real estate displayed on this website comes in part from the Heartland Multiple Listing Service database compilation. The properties displayed on this website may not be all of the properties in the Heartland MLS database compilation, or all of the properties listed with other brokers participating in the Heartland MLS IDX program. Detailed information about the properties displayed on this website includes the name of the listing company.
Information is deemed reliable but is not guaranteed.

Copyright © 2025 ELITE Realty.