12701 Applewood Drive, Grandview, MO 64030

     
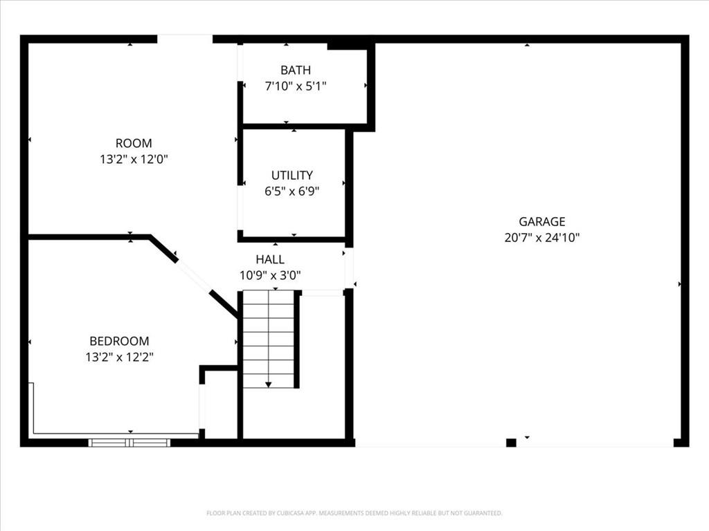
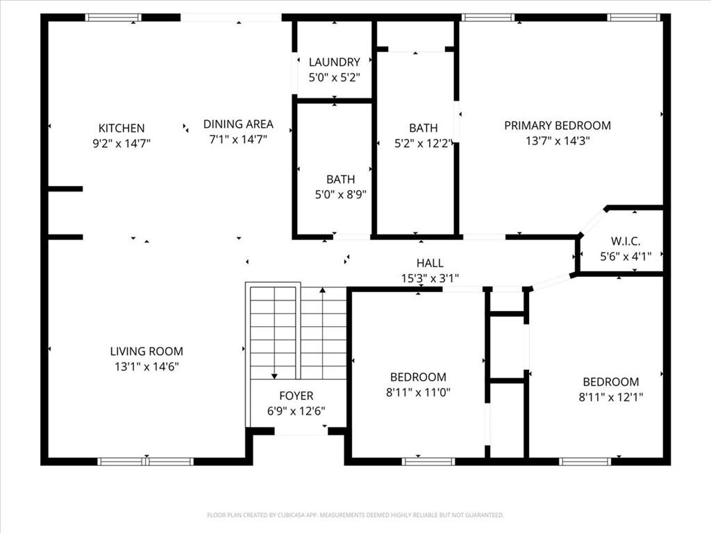
  • 4Beds
  •   
  • 3 Baths
  •  
  • 0½ Baths
  •  
  • 1,622Sq Ft
Mortgage Calculator

$349,900
 est. $1,606/mo

**HOME IS CURRENTLY AT THE PAINTING STAGE AS OF 11/14 - STILL TIME TO CHOOSE YOUR FINISHES** BRAND NEW construction home with main level living. This 4 bed/3 bath split entry won't disappoint with high vaulted ceilings, custom cabinetry, luxury vinyl plank floors, kitchen island, granite counter tops thru-out, walk-in closet in master bedroom & laundry room off of the kitchen! 2nd Family Room, 4th bedroom & full bath on the lower level. Walk out basement! 2 car garage! 12 x 12 deck off the kitchen! Additional home features include: high efficiency hvac system, passive radon system, soft close drawers & doors. 1 year builder warranty!

Directions
Northbound Interstate Highway 49, take exit 179 past Main Street, onto E Frontage Road, until 127th street, take a right for ¼ mile until Applewood Drive, take a right, the house is the first house on the left of the street. Google Maps works well for this location. Note: There are two areas in Grandview that have Applewood Dr. This area is to the north of the Library and Grandview High School. Call agent if uncertain how to get there.
Subdivision
Hillside Grand
City
Grandview
County
Jackson
Property Type
Residential / Single Family Residence
Listing Updated
Nov 14, 2025 at 3:11pm
MLS Number
2572601
Property Tax
$0
Home Owners Association
No
Disclaimer
The information displayed on this page is confidential, proprietary, and copyrighted information of Heartland Multiple Listing Service, Inc. (“Heartland MLS”). Copyright 2025, Heartland Multiple Listing Service, Inc. Heartland MLS, Elite Realty and Agent Jo do not make any warranty or representation concerning the timeliness or accuracy of the information displayed herein. In consideration for the receipt of the information on this page, the recipient agrees to use the information solely for the private non-commercial purpose of identifying a property in which the recipient has a good faith interest in acquiring.
The data relating to real estate displayed on this website comes in part from the Heartland Multiple Listing Service database compilation. The properties displayed on this website may not be all of the properties in the Heartland MLS database compilation, or all of the properties listed with other brokers participating in the Heartland MLS IDX program. Detailed information about the properties displayed on this website includes the name of the listing company.
Information is deemed reliable but is not guaranteed.

Copyright © 2025 ELITE Realty.