5600 Roe Boulevard, Roeland Park, KS 66205

     
  • 2Beds
  •   
  • 1 Bath
  •  
  • 0½ Baths
  •  
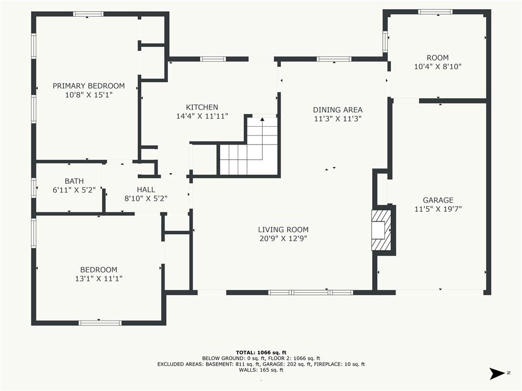
  • 1,137Sq Ft
Mortgage Calculator

$290,000
 est. $1,390/mo

Welcome to this classic 2-bedroom, 1-bathroom ranch offering timeless charm and everyday comfort. Built in 1947, this home features beautiful wood floors throughout and a warm, inviting family room with a large picture window and fireplace — perfect for cozy evenings or casual entertaining. The dedicated dining room flows into a well-equipped kitchen complete with all appliances, including a gas stove, making meal prep a breeze. Outside, the backyard offers great potential with a stone patio and built-in firepit, mature tree for shade, and a handy storage shed — ideal for relaxing or hosting gatherings. Additional features include a one-car garage and an unbeatable location close to shopping, dining, entertainment, and major highways for an easy commute. Don’t miss your chance to own this charming, move-in ready home with vintage character and modern convenience!

Directions
Going South on Roe Blvd (one way street). The home is on the right just past W. 56th St. If driving North on Roe Blvd., turn West onto 57th St. Right onto Linden. At stop sign turn right onto 55th Ter. At Roe and 55th Terr turn right onto Roe the home will be on the right.
Subdivision
Roe Manor Heights
City
Roeland Park
County
Johnson, KS
Property Type
Residential / Single Family Residence
Listing Updated
Sep 07, 2025 at 4:09pm
MLS Number
2552356
Property Tax
$3,607
Home Owners Association
No
Disclaimer
The information displayed on this page is confidential, proprietary, and copyrighted information of Heartland Multiple Listing Service, Inc. (“Heartland MLS”). Copyright 2026, Heartland Multiple Listing Service, Inc. Heartland MLS, Elite Realty and Agent Jo do not make any warranty or representation concerning the timeliness or accuracy of the information displayed herein. In consideration for the receipt of the information on this page, the recipient agrees to use the information solely for the private non-commercial purpose of identifying a property in which the recipient has a good faith interest in acquiring.
The data relating to real estate displayed on this website comes in part from the Heartland Multiple Listing Service database compilation. The properties displayed on this website may not be all of the properties in the Heartland MLS database compilation, or all of the properties listed with other brokers participating in the Heartland MLS IDX program. Detailed information about the properties displayed on this website includes the name of the listing company.
Information is deemed reliable but is not guaranteed.

Copyright © 2026 ELITE Realty.